Built for the 2009 World Swimming Championships, swimming centre in Valco San Paolo, in Rome, has been recently redeveloped.
Rome: swimming centre in Valco San Paolo

The Valco San Paolo swimming centre in Rome, built for the 2009 World Swimming Championships, was opened while work was still in progress during the Championships and closed after 20 days to allow for completion.
Work did not resume, and the facility was left abandoned with the works unfinished and those already completed falling into disrepair.




In October 2024, after major redevelopment work, the Valco San Paolo swimming centre was reopened as a FIN Federal facility.
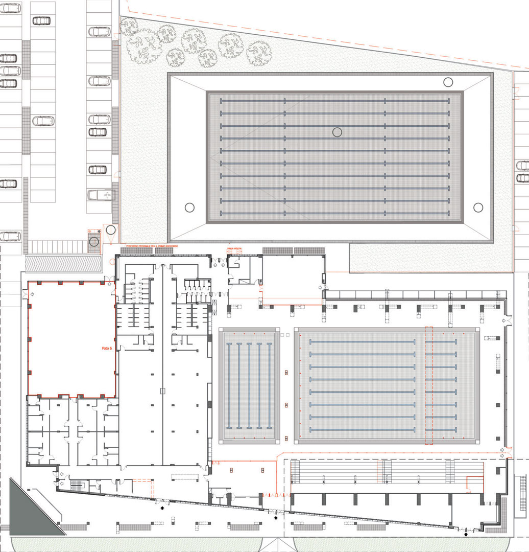
It has three pools: a 50-metre outdoor pool, a 33-metre indoor pool with a movable pontoon to reduce it to 25 metres, and a 21-metre teaching pool. All aquatic disciplines can be practised there, with the exception of diving.
The main work carried out was aimed at resolving the deficiencies that the structure had developed after 15 years of neglect.



Among other things, the wooden flooring in the gym was restored and refurbished, glass walls were installed to separate the swimming pool area from the café and gym, the office and service areas were completed, the stands were finished and the relevant parapets were installed, as well as the steel and glass balustrade separating this area from the bathing area.
Outside, the walls, bottom and edge of the pool were re-coated, the geometry of the pool was adjusted, and the solarium flooring was restored.
Finally, the plant equipment was completed with all the incomplete or missing machines, ducts and systems.


