Il sito di architettura ArchDaily ha pubblicato l’esito del concorso che premia le migliori architetture dell’anno attraverso il voto di 100.000 architetti e cultori che frequentano il sito. Tra gli impianti sportivi è stato prescelto l’impianto per gli sport “di strada” realizzato dal gruppo danese Effekt recuperando un edificio industriale dismesso.
Il progetto è stato selezionato anche per il Mies van der Rohe Award 2019 (premio dell’unione europea per l’architettura contemporanea).
Pubblichiamo sia il progetto vincitore, sia un precedente intervento di Effekt ispirato agli stessi princìpi.
Streetmekka: gli sport di strada e il riuso degli edifici dismessi

Streetmekka a Viborg, Danimarca: la fabbrica di mulini a vento
Streetmekka è una nuova destinazione culturale che offre una grande varietà di strutture per sport auto-organizzati come parkour, skate, bouldering, basket, trial, oltre ad una serie di aree di workshop personalizzati per la produzione musicale, dee-jaying, uno studio di animazione, studi di artisti e laboratori di legno e metallo.
Spazi sociali e aree di incontro informali sono distribuiti in tutto l’edificio e strategicamente intrecciati tra le funzioni primarie, in base all’idea che la vicinanza alle attività favorisce la partecipazione.
Dare nuova vita agli edifici industriali abbandonati
L’edificio originale, un tempo adibito a fabbrica di mulini a vento, è un tipico esempio di uno dei numerosi capannoni o fabbriche di produzione in serie della fine degli anni ’60 e degli anni ’70 che si trovano in quasi tutte le zone industriali suburbane del mondo occidentale. Costruiti con pannelli prefabbricati in cemento armato o acciaio, questi avanzi industriali sono percepiti come elementi di scarso o trascurabile valore storico, culturale e architettonico.
Invece di adottare l’approccio tradizionale e di demolire l’edificio, i progettisti hanno voluto esplorare la possibilità di riutilizzare e riprogrammare questo tipo di edificio insignificante e per lo più introverso in modo qualitativo e con un budget molto limitato.
Per quanto poco interessanti e grigie all’esterno, queste scatole contengono spesso uno spazio interno imponente, di dimensioni magnifiche e di proporzioni quasi cattedrali, basato su un sistema strutturale ripetitivo e ordinato. Questo vasto spazio rappresentava l’unico vero valore dell’edificio, che si è voluto esporre ed evidenziare al mondo esterno.
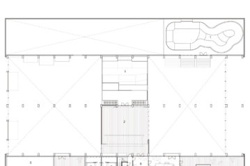
L’approccio è stato semplicemente quello di rimuovere le pareti alle due estremità dell’edificio e di collocare tutte le funzioni amministrative e gli spazi dell’officina su un lato della struttura esistente, e le aree per il pattinaggio sull’altro lato, lasciando intatto lo spazio produttivo interno. Questa chiara riorganizzazione dota l’edificio anche di un involucro e di un esterno completamente nuovi e permette di attirare più luce diurna attraverso le due nuove facciate in vetro, migliorando al contempo la connettività con gli spazi e le attività esterne.
Con l’integrazione nell’espansione urbana di molti siti industriali ormai vuoti, questo approccio può essere replicato e può aprire la strada alla rivitalizzazione di molti altri edifici dismessi lasciati nel degrado o in fase di demolizione.
Alternative individualizzate e auto-organizzate
L’obiettivo funzionale della nuova Streetmekka è quello di creare una serie di spazi funzionali a fini sportivi, culturali e sociali disposti in una rete programmatica altamente complessa. L’obiettivo è quello di soddisfare la crescente domanda di alternative auto-organizzate e individualizzate alle attività sportive e culturali, sostenendo la missione di attrarre i giovani locali e creare una trasformazione sociale duratura attraverso gli sport di strada e la cultura.
La nuova Streetmekka 2.0 è per tutti. Non importa se si vuole partecipare, creare, stare insieme o osservare: c’è uno spazio designato per tutto e per tutti. L’idea di ampliare il programma originale per includere così tanti tipi diversi di attività sotto lo stesso tetto si basa sul cocnetto che la coesistenza genera nuove sinergie e nuove relazioni sociali. Inoltre, espone i visitatori a nuovi tipi di attività che non avrebbero mai potuto realizzare. Lle aree di laboratorio consentono agli utenti di sviluppare e riconfigurare continuamente la struttura. Streetmekka Viborg non è statico in termini di programma e di aspetto fisico: continuerà ad evolversi con gli utenti – sia a breve termine (a causa delle facciate animate e della street-art) sia a lungo termine (quando si aggiungono nuovi programmi e si rimuovono quelli vecchi).
Paesaggio di strada al coperto
Il concetto architettonico si basa sull’idea di un paesaggio stradale interno. Il progetto apre l’introverso edificio industriale e trasforma l’imponente spazio centrale della fabbrica in un nuovo tipo di spazio interno: un paesaggio stradale coperto aperto verso l’esterno. Il concetto di streetscape viene utilizzato per definire e organizzare le varie funzioni e metterle in relazione a specifiche esigenze, come la qualità spaziale, la luce diurna, la materialità e le zone di temperatura.
Il nuovo volume è poi avvolto da una funzionale pelle di policarbonato traslucido, che conferisce l’aspetto di un edificio leggero e accogliente, e funge anche da gigantesca tela per gli artisti visivi locali per mostrare e proiettare la loro arte, ma che differenzia nettamente l’edificio dagli impianti industriali circostanti. Streetmekka a Viborg è il primo lotto ad essere trasformato nel nuovo quartiere e fungerà da catalizzatore per la vita cittadina del quartiere.
Il paesaggio circostante diventa l’estensione naturale della superficie interna con varie funzioni sportive e culturali, collocate in una striscia di verde ricreativo che collega il sito al centro della città attraverso una futura pista ciclabile e pedonale.
Costo
La conservazione della struttura originaria e il riutilizzo dei materiali hanno permesso di effettuare il restauro a costi molto contenuti. Molti dei componenti originali sono stati riutilizzati anche come elementi di arredo per le attività di parkour e per gli spazi di ritrovo. Il costo finale dell’edificio è pari a circa un terzo di un palazzetto dello sport tradizionale.
Streetmekka a Esbjerg, Danimarca: il deposito di locomotive
Precedente di un paio d’anni rispetto all’intervento di Viborg, lo Streetmekka di Esbjerg è il primo tentativo di creazione di un impianto sportivo e culturale “di strada” di nuova concezione.
Situato a Esbjerg, la quinta città più grande e più giovane della Danimarca, il progetto vede la trasformazione di un deposito ferroviario industriale abbandonato in una piattaforma culturale e sociale in grado di rendere gli sport e la cultura di strada inclusivi e accessibili tutto l’anno, anche nel clima scandinavo.
Dal punto di vista architettonico, la nuova struttura è una reinterpretazione della struttura esistente, originariamente progettata come una tipica roundhouse con una piattaforma girevole nel cortile centrale. Le nuove sale sono collocate nella stessa geometria in una varietà di spazi esterni ed interni, ognuno con la propria funzione ed espressione, creando un complesso coerente di cultura di strada multifunzionale.
Il programma comprende un’area coperta per la transizione e il bowl skate, campi da street basket interni ed esterni, un’area street dance, un’arena indoor street skate, aree workshop per DJ-schools e street art, sale riunioni, uffici amministrativi, un bar, cucina, spogliatoi e un’ampia area sociale. Piccole nicchie si trovano in tutto l’edificio per promuovere ritrovi informali tra una attività e l’altra.
Nel cuore del complesso si trova una piazza sportiva di strada al coperto e un grande spazio sociale all’aperto. Questo è anche il punto di arrivo dove si ottiene immediatamente una panoramica di tutte le attività e la loro posizione individuale.
L’edificio è stato completato e aperto al pubblico nel gennaio 2016.










