Una nuova Casa della Scherma è stata realizzata a Jesi, in provincia di Ancona: ospiterà il Club Scherma locale e sarà centro federale per il fioretto.
La Casa della Scherma a Jesi

La città di Jesi, in provincia di Ancona, simbolo del fioretto azzurro e culla di autentici fuoriclasse come Valentina Vezzali, Giovanna Trillini, Elisa Di Francisca, ha inaugurato lo scorso giugno la nuova Casa della Scherma, che sarà utilizzata per allenamenti e competizioni nazionali e internazionali e ospiterà il Club Scherma di Jesi.
Il nuovo Palascherma di Jesi sorge in un contesto già dedicato allo sport; nell’area, infatti, sono già presenti altre strutture quali il Palazzetto dello Sport, la pista di atletica ed il campo da calcio, oltre ad ampi spazi dove praticare attività all’aperto. L’ambiente esterno è caratterizzato da aree verdi con la dotazione di ampi parcheggi che costituiscono standard utili anche alla nuova struttura. Un parcheggio di nuova realizzazione con accesso da via delle Nazioni completerà tale tipo di dotazione.

Il progetto della Casa della Scherma di Jesi
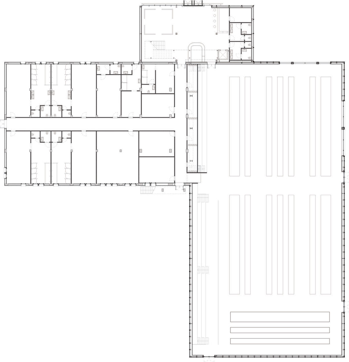
L’edificio è costituito da tre copri di fabbrica aggregati: il corpo dell’atrio, il corpo che ospita i servizi igienici, spogliatoi, locali tecnici e il corpo che accoglie la Sala Scherma vera e propria, con una superficie lorda di circa 2.700 mq.
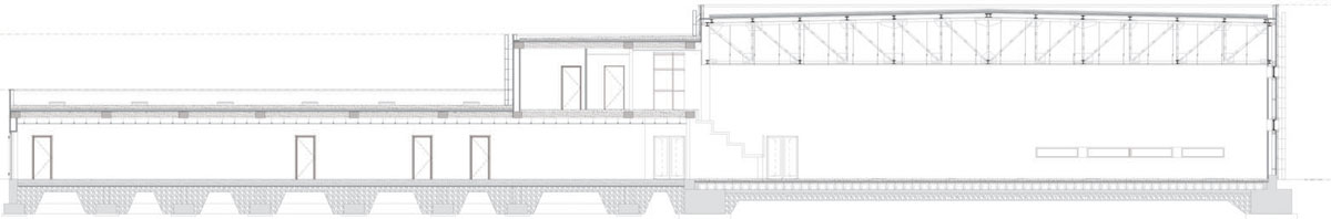
Costruttivamente, le strutture sono realizzate in cemento armato per il corpo spogliatoi e servizi mentre per i corpi della Sala Scherma e l’atrio è stata prevista una struttura in acciaio.




Fasi di lavorazione: in alto, la struttura metallica e i pannelli di facciata;
sotto, i pannelli di copertura con la sottostante tralicciatura.
Nello specifico il corpo dell’atrio di accesso è un volume rettangolare a doppia altezza con superficie complessiva di mq 155.4 e altezza interna di 6.05 m. Questo spazio, caratterizzato da un’ampia facciata continua, ospita la reception, ambito centrale dedicato alla collocazione dei trofei e per la narrazione della storia del Club Scherma, ed una zona per il ristoro, con servizi igienici annessi e i collegamenti verticali per accedere al piano superiore dell’edifico.
Il secondo corpo della Casa della Scherma di Jesi, l’unico con struttura in cemento armato, anche questo di forma rettangolare, si sviluppa principalmente su un unico piano con altezza interna di 3 metri, a cui si aggiunge un secondo piano che si collega con il corpo dell’atrio. Questo corpo ospita diverse funzioni: servizi igienici, spogliatoi, sala medica, palestra attrezzi, essiccatoio, armeria e magazzini al piano terra, mentre al piano superiore sono posizionati gli ambienti dedicati al personale come gli uffici, la sala riunione. Questo piano, posizionato a quota 3.40 m, è in posto diretto contatto con la Sala Scherma tramite la tribuna.
Il corpo della Sala Scherma, ancora una volta di forma rettangolare e con struttura in acciaio, occupa una superficie complessiva di 1376 mq e altezza esterna di 8,55 m.
Vi sono posizionate diciassette pedane, raggruppate in sette batterie aventi le seguenti caratteristiche:
- quattro batterie contenenti ognuna due pedane, una avente larghezza di 1 m ed una di 1,80 m;
- due batterie contenenti ognuna tre pedane aventi tutte larghezza di 1 metro;
- una batteria contenente tre pedane, due di 1 metro e una avente larghezza di 1,80 m.
Tutte le pedane hanno lunghezza di 18 metri. Tra una pedana e l’altra è presente lo spazio sufficiente e necessario affinché gli atleti schermidori non si ostacolino, interferendo tra di loro durante l’attività sportiva. Tutte le pedane hanno fasce di rispetto da ostacoli, muri perimetrali, o altre attrezzature non inferiori a 2 metri, in modo da garantire lo svolgimento dell’attività sportiva in condizioni di sicurezza.



La distribuzione del pubblico alla tribuna avviene dall’alto con un percorso interno che si sviluppa dall’atrio al distributivo superiore ed infine alle scalette di smistamento. È stata prevista l’installazione di un ascensore che collega l’atrio con il ballatoio di distribuzione alla tribuna al primo livello.
La tribuna si sviluppa su quattro gradoni con una capienza di 134 posti.
L’aspetto architettonico della Casa della Scherma di Jesi è conformato in modo da ottenere un armonioso rapporto delle aperture a seconda delle funzioni interne e inoltre tutte le superfici finestrate sono fatte per garantire il rispetto del rapporto aeroilluminante di 1/8.
Il sistema delle uscite di emergenza e dei servizi igienici per il pubblico, gli spogliatoi e servizi igienici per gli atleti sono dimensionati secondo le normative CONI e serviranno le varie attività in modo semplice e funzionale.
Dal punto di vista normativo è stata prestata particolare attenzione alla norma antisismica e al contenimento dei consumi energetici dell’involucro, realizzato in modo da rispettare la classe energetica più appropriata contribuendo in maniera efficace al contenimento dei costi di gestione.
La Provincia di Ancona ha acquisito la preesistente palestra di scherma che diventa una palestra scolastica per gli studenti del liceo Leonardo Da Vinci; la nuova Casa della Scherma di Jesi sarà Centro Federale per il Fioretto.




