Al centro sportivo Cereate di Veroli (Fr) sono stati realizzati ex novo la tribuna e il corpo spogliatoi intorno all’impianto polifunzionale con un nuovo manto in erba sintetica per il calcio a 11 e una pista di esercizio per l’atletica leggera.
Adeguamento del centro sportivo Cereate a Veroli (Fr)

Con i lavori di riqualificazione, ristrutturazione e adeguamento del centro sportivo “Cereate” a Veroli (Frosinone) in località Casamari, l’Amministrazione Comunale si è posta alcuni precisi obiettivi: offrire nuovi spazi e strutture polivalenti per lo sport e il pubblico spettacolo sul territorio comunale; qualificare il complesso sportivo per gli atleti, gli addetti e gli spettatori, rispetto all’utenza comunale; implementare le caratteristiche tipologiche degli spazi di attività sportiva (calcio e atletica leggera); potenziare le caratteristiche polifunzionali del complesso da utilizzarsi anche per le attività spettacolari, culturali e del tempo libero; allargare le fasce orarie di utilizzo dell’impianto polivalente così da consentire un maggior uso per la popolazione presente sul territorio comunale costituita in associazioni sportive e non, e fruibile da parte dei disabili.
In funzione di tali obiettivi scaturiscono alcune considerazioni. Innanzitutto, il bacino di utenza gravitazionale del complesso sportivo si colloca su un’area di riferimento territoriale che va ben oltre lo stesso Comune di Veroli, interessando sia i comuni viciniori che la città capoluogo di Frosinone.
Inoltre, la riqualificazione del Centro polivalente anche per manifestazioni culturali, spettacolari e per il tempo libero, collocherà il Comune di Veroli all’interno di sperimentati circuiti di notevole attrazione, comportando ciò interessanti ricadute in termini turistico-ricettivi e quindi economici per l’intero ambito territoriale, caratterizzato dalla diffusa presenza di testimonianze storico-architettoniche e paesaggistiche di notevole valenza, con particolare riferimento alla vicina Abbazia di Casamari.
L’importanza che assume l’impianto sportivo polivalente, in seguito agli interventi di riqualificazione, ristrutturazione e adeguamento, pone tale struttura quale costante punto di riferimento per lo svolgimento di allenamenti collegiali di società sportive oltre che per competizioni e manifestazioni a livello territoriale.

Il quadro degli interventi del centro sportivo Cereate di Frosinone
Gli interventi hanno interessato un lotto di circa 15.500 mq.
Sono state innanzitutto demolite le strutture esistenti costituite dal blocco spogliatoi e dalla tribuna, oltre alle recinzioni e vari impianti, attrezzi e box prefabbricati esistenti sul posto.
È stato quindi realizzato lo spazio di attività sportiva per il calcio a 11 con superficie in erba artificiale di ultima generazione, compreso sottofondo drenante, opere di drenaggio superficiale e profondo, geotessile, canaletta perimetrale, smaltimento, impianto di irrorazione, manto sportivo e intaso, e le relative attrezzature sportive.
Al contorno di questo è stato realizzato il tracciato per l’impianto di esercizio per l’atletica leggera (pista e pedane).
Lungo i due lati lunghi dell’impianto, sono state collocate le nuove strutture di servizio: il blocco spogliatoi e, di fronte, la tribuna coperta.


Il campo di calcio del centro sportivo Cereate di Veroli
Il preesistente campo di calcio a 11 in terra battuta è stato trasformato, come detto sopra, in un campo in erba artificiale. L’adeguamento dimensionale e costruttivo dello spazio di attività sportiva è stato realizzato in ottemperanza al vigente Regolamento “LND Standard”.
Il campo di calcio ha dimensioni di m 100×60 con spazio per destinazione laterale (su entrambi i lati) di m 2,50 e spazio per destinazione di fondo campo di m 3,50, completamente perimetrati dalla canaletta di raccolta acque con griglia e relativi pozzetti di ispezione collegati al pozzetto terminale sifonato e diaframmato e da questo, mediante tubo, fino alla vasca di accumulo ed al recapito finale.
Il campo è stato realizzato con l’asportazione dello strato di terreno vegetale e della massicciata esistente, impianti di drenaggio e irrigazione compresi.
Il nuovo sottofondo è realizzato a drenaggio verticale con pendenza a quattro falde. Seguendo le indicazioni del regolamento LND Standard, la stratigrafia è costituita da una massicciata di spessore medio 15 cm, uno strato di pietrisco di 7 cm, uno strato di riempimento in graniglia di 4 cm e uno strato finale insabbia di circa 3 cm.
Il manto in erba artificiale, in PE, è intasato con sabbia silicea e con prestazionale in granuli di gomma vulcanizzata nobilitata. Il campo è stato completato con le attrezzature sportive di rito.

L’impianto di esercizio per l’atletica leggera al centro sportivo di Veroli
L’impianto di atletica leggera, costituito da pista e pedane di A.L, realizzato ex-novo, stante le particolari dimensioni plano-altimetriche del lotto, ai sensi della circolare Impianti F.I.D.A.L. è classificato come “Impianto di esercizio (IE)” in quanto non presenta caratteristiche geometriche tali da essere destinato all’organizzazione di eventi agonistici con omologazione dei risultati.
L’impianto comprende la pista podistica per corse piane e con ostacoli, e le pedane monodirezionali per salti in estensione, salto con l’asta, salto in alto, ubicate sulle lunette a nord e sud dell’impianto.
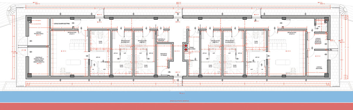
Il blocco spogliatoi al centro sportivo di Veroli
Il preesistente blocco destinato agli spogliatoi per atleti e addetti, ubicato sul lato sud-ovest del lotto, non risultava rispondente alle vigenti norme in materia, per cui se ne è prevista la totale demolizione.
Il corpo edilizio realizzato ex-novo è posizionato lungo il lato est, prospiciente la viabilità comunale ed opposto alla tribuna spettatori.



L’edificio, a pianta rettangolare, presenta un ingombro di m 40,40 x 8,50, con una superficie lorda di mq 343,40, e una copertura che presenta sbalzi perimetrali.
Il fabbricato, stante la particolare configurazione architettonica, ha un’altezza utile interna variabile da m 2,95 a m 3,45, mentre l’altezza fuori terra (dal piano di sistemazione esterna) nel punto di maggior sviluppo è pari a m 4,20.
Il nuovo organismo edilizio ospita i locali per i servizi di supporto (spogliatoi per atleti, istruttori / allenatori, giudici di gara e relativi servizi, primo soccorso, controllo ingresso, deposito attrezzi, ufficio di gestione/società sportive), locali per unità igieniche e docce, locali tecnologici.
La tribuna del centro sportivo Cereate di Veroli
Sul lato ovest del Centro sportivo è stata ubicata la tribuna spettatori, realizzata in struttura metallica poggiante su platea in c.a. per la capienza complessiva di 570 unità (di cui 560 spettatori con posti a sedere numerati, 4 postazioni per diversamente abili e 6 postazioni per giornalisti / riprese).





In alto, dettagli costruttivi della tribuna con pensilina in carpenteria metallica.
Sotto, pianta della tribuna a livello dell’ultimo gradino e pianta dei locali sottostanti.
Al di sotto della tribuna spettatori trovano ubicazione i locali di supporto per gli spettatori, comprendenti i servizi igienici, un locale di primo soccorso, un locale bar e 6 depositi per attrezzature sportive a servizio delle società fruitrici dei due diversi impianti sportivi (calcio e atletica leggera).
Gli altri spazi del centro sportivo di Veroli
Oltre alla riqualificazione degli spazi di attività sportiva è stata eseguita la sistemazione delle aree interne al lotto con particolare riferimento alle zone circostanti il blocco spogliatoi atleti / addetti e la tribuna per spettatori.
Un separatore metallico è stato realizzato tra l’area destinata alle attività sportive e la zona spettatori.
Perimetralmente all’impianto sportivo è stata realizzata inoltre una recinzione che, stante il particolare contesto paesaggistico e storico-architettonico in cui si colloca l’opera, è stata scelta in metallo costituita da montanti e pannelli grigliati, mitigata con la messa a dimora di siepi tappezzanti, e dotata di apposti varchi.

Esternamente al perimetro dell’impianto sportivo polivalente si prevede la definizione plano-altimetrica della viabilità urbana di servizio, delle aree da adibire a parcheggio, degli spazi a verde di arredo, il tutto nell’ottica di garantire la sicurezza degli utenti (spettatori, atleti, fruitori, diversamente abili ecc,) e di riqualificazione dell’intorno urbano.
L’impianto di illuminazione del centro sportivo di Veroli
L’impianto, che è uno dei primi in provincia di Frosinone a rispettare integralmente la L.R. 23/2000 (Norme per la riduzione e per la prevenzione dell’inquinamento luminoso), è stato oggetto di un intervento correttivo, per la limitazione della luce dispersa vero l’alto, grazie alle prescrizioni suggerite dall’Osservatorio Astronomico di Campo Catino (che dista appena una decina di km in linea d’aria) e accolte dalla Direzione Lavori.


Ogni torre-faro è equipaggiata con 12 fari simmetrici a LED, da 550 Watt, muniti di schermo recuperatore di flusso che blocca l’emissione di luce oltre 90° e assicura i valori di illuminamento imposti dalle norme tecniche per gli impianti di questo tipo.
Il risultato finale è eccellente da tutti i punti di vista (abbagliamento, illuminamento a terra, light-pollution e luce intrusiva). Un impianto all’avanguardia che rappresenta un esempio positivo, ancora raro nel Lazio, che dovrebbe essere seguito da tutti i gestori di centri sportivi.


