Grazie ai lavori che hanno interessato entrambe le vasche della piscina comunale di Giulianova, in provincia di Teramo, l’impianto può ora ospitare gare regionali.
Adeguamento della piscina comunale a Giulianova

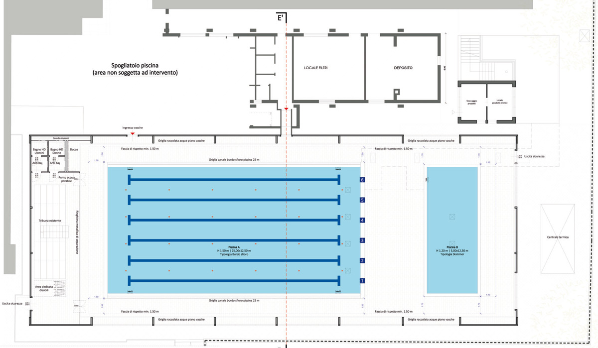
L’intervento consiste nella rigenerazione e adeguamento della piscina comunale di Giulianova, in provincia di Teramo, sita nel centro sportivo di Via Ippodromo al fine di renderla idonea per le competizioni agonistiche.

Il progetto esecutivo prevedeva la ristrutturazione di entrambe le vasche con realizzazione di un nuovo locale tecnico in parte interrato idoneamente dimensionato. Le nuove vasche sono realizzate con struttura interamente in cemento armato e successivamente rivestite con materiale ceramico idoneo per piscine.
Le nuove vasche hanno di dimensione 25×12,50 e 12,50×5 m. La vasca grande è del tipo a bordo sfioro e ha una profondità costante di 1,50 m.
Come da regolamento FIN la piscina di Giulianova potrà ospitare gare regionali. Questa è accessoriata e predisposta per 6 corsie di larghezza 2 m cadauna mentre le corsie laterali sono di 2,25 m.
La nuova vasca piccola è del tipo a skimmer e ha una profondità costante di 1,20 m. La stessa, a differenza della vasca preesistente, è realizzata interamente a filo pavimento e non sopraelevata come in precedenza. Questo ha permesso di abbattere le barriere architettoniche rendendola fruibile anche a persone con disabilità .

A differenza della vasca grande questa è destinata per lo più ad attività di tipo fisioterapico e riabilitativo.
Oltre a ricostruire entrambe le vasche è stato rifatto interamente il solarium con sistemazione del sottofondo e con successiva posa di una nuova pavimentazione di colore chiaro al fine di migliorare e innalzare il livello di illuminazione interna.
Altro intervento realizzato è la verniciatura di tutte le parti interne in legno al fine di proteggere la struttura dagli agenti chimici presenti nell’ambiente e migliorarne la salubrità , oltre che innalzare la percezione del grado di illuminamento generale. È stato effettuato anche un relamping con l’installazione di nuovi corpi faro LED che sono dimmerabili e dunque permettono, a seconda delle esigenze, di regolare l’illuminazione garantendo un notevole risparmio energetico.
Il progetto è stato assoggettato a parere CONI ed è stata successivamente richiesta, dal gestore, l’omologazione da parte della FIN per poter svolgere le competizioni agonistiche.


Dall’alto, prospetto est con le canalizzazioni della ventilazione (in rosso mandata, in blu ripresa)
e sezione trasversale.
Inoltre, al fine di raccogliere le esigenze del Comune è stato sostituito il sistema di canalizzazione interno al piano vasche collegato all’UTA esistente. I nuovi canali, in tessuto microforato, sono stati posizionati in modo tale da garantire una loro manutenibilità senza dover invadere le vasche e dunque bloccare le attività .
Sempre internamente al piano vasche sono stati realizzati due bagni accessibili ad utenti DA.
Oltre ai lavori di cui sopra l’intervento alla piscina di Giulianova ha previsto la realizzazione di un nuovo locale tecnico in c.a., posizionato esternamente e adibito ad ospitare l’impianto di filtrazione di entrambe le piscine. Il locale è dotato di un piano interrato e un piccolo locale fuori terra.
Infine, è stato sistemato l’ingresso posto su viale Orsini al fine di garantire un accesso al pubblico durante le manifestazioni sportive.
È stato realizzato un camminamento pedonale, per consentire il passaggio agli utenti DA, con l’installazione di pali per l’illuminazione oltre alla realizzazione di un sistema di raccolta acque piovane collegato alla linea pubblica passante su viale Orsini.




