Il progetto definitivo del primo stralcio per la costruzione di un polo scolastico in comune di Cornuda è oggetto di un bando di gara della Provincia di Treviso, pubblicato nel luglio scorso, finalizzato alla progettazione esecutiva e successiva realizzazione dell’edificio scolastico e dell’annessa palestra.
Oltre alla progettazione della palestra scolastica, prevista per un uso anche esterno all’attività didattica, la progettazione presenta motivi di interesse per lo studio della sistemazione viabilistica, degli accesi, e degli spazi pubblici di pertinenza.
Riprendiamo dalla relazione generale del progetto definitivo la descrizione dell’intervento.
Cornuda: nuovo edificio scolastico con palestra

Rendering dal lato della palestra.
Premessa
L’intervento ha origine dalla decisione dell’Ammini-strazione di Cornuda di realizzare un nuovo Polo Scolastico destinato ad accogliere entrambi i plessi esistenti nel Comune: la Scuola Primaria Antonio Canova e la Scuola Secondaria di primo grado A.G. Roncalli.
Come illustrato nel Progetto di fattibilità Tecnico Economica predisposto dall’Amministrazione durante il 2018, valutate le attuali condizioni degli edifici che ospitano i plessi, il livello di funzionalità dei servizi scolastici che di fatto risultano dislocati in due edifici limitrofi, la posizione al centro del paese che determina difficoltà importanti sia per la gestione della viabilità che del sistema dei parcheggi, è stata intrapresa la strada della costruzione di un nuovo polo scolastico in cui unificare le sedi dei due plessi e tutti i servizi connessi.
L’area individuata per l’intervento è un’area di proprietà comunale situata ad ovest del centro abitato di Cornuda e servita dalla strada provinciale che conduce a Maser, ovvero Via XXX Aprile; tale area denominata “ex salumificio Becher” presenta una superficie complessiva di 16.000 mq sulla quale insisteva uno stabilimento produttivo di circa 58.600 mc che, dopo l’acquisizione da parte dell’Amministrazione a seguito di asta fallimentare, è stato demolito con conseguente bonifica ambientale delle aree.
Allo stato attuale l’area si presenta quasi totalmente libera dai fabbricati preesistenti ma vi si trovano depositati cumuli triturati di macerie idonee al reimpiego nei futuri lavori di realizzazione del complesso.
Il nuovo polo scolastico di Cornuda sarà destinato all’attuale popolazione scolastica dei due plessi ovvero 225 allievi della scuola secondaria di primo grado e 375 della scuola primaria; il complesso ospiterà anche una palestra omologata Coni fino alla serie regionale della pallavolo e un auditorium per 200 persone. Tali servizi saranno aperti all’uso comunitario in modo da trasformare il complesso in un vero civic center in grado di offrire servizi indipendenti dal funzionamento dei plessi scolastici e aperto a tutta la città.
L’intervento di realizzazione del complesso è stato suddiviso in due stralci di attuazione che corrispondono alla realizzazione della scuola secondaria con palestra ed auditorium, per quanto attiene il primo stralcio, e alla scuola primaria per quanto attiene il secondo.
La realizzazione complessiva del polo comprende anche la nuova configurazione della viabilità di accesso al lotto e delle relative aree di sosta; la ripartizione di tali aree nei due stralci di attuazione, di fatto pubbliche ed esterne all’area scolastica, è stata individuata in modo da rendere completamente funzionale l’edificio del primo stralcio e tutte le aree esterne di pertinenza.
Descrizione dell’intervento
Il progetto per la realizzazione primo stralcio del Polo scolastico di Cornuda consiste nella realizzazione della nuova scuola secondaria di primo grado completa di due importanti spazi quali palestra e auditorium.
Finalità del progetto è stato l’approfondimento dei seguenti aspetti:
. ottimizzazione del progetto architettonico al fine di rispondere alle esigenze tecniche nate dal quadro esigenziale esposto dalla Committenza e dagli utenti finali del prodotto;
. definizione delle strategie per la sostenibilità ambientale, energetica ed economica dell’edificio al fine di realizzare un edificio efficiente e sostenibile, capace di garantire l’ottimizzazione degli aspetti legati al funzionamento tecnologico dell’insieme, il contenimento dei costi di costruzione e di gestione, nonché dei tempi di realizzazione.
Il progetto del primo stralcio d’intervento nasce da una riflessione sul funzionamento dell’intero comparto a seguito dell’inserimento di entrambi i plessi scolastici.
L’idea, condivisa con l’Amministrazione e con la Dirigenza scolastica, che ha ispirato l’impianto, è stata quella di creare un campus che si sviluppasse attorno ad un parco urbano, restituendo una nuova immagine ad un’area che è sempre stata occupata da costruzioni di tipo industriale nell’assoluta assenza di verde; l’andamento dei volumi attorno ad un nucleo verde ripristina la connessione tra l’insediamento e il paesaggio collinare appena sovrastante il limite della strada provinciale e gli edifici cercano forme e sviluppi planoaltimetrici che scardinano l’idea monolitica e tradizionale dell’edificio scolastico per dialogare con l’ambiente e soprattutto con la comunità che non sarà più solo quella dell’utenza strettamente scolastica.
L’ambito di intervento presenta importanti criticità che non permettono, nemmeno in questa fase, di procrastinare alle fasi successive la disposizione generale dell’impianto planivolumetrico, le quote d’imposta dei fabbricati e lo sviluppo della viabilità.
Il lotto si estende da nord, ovvero da Via XXX Aprile, a sud, Via Fallaci, con un importante dislivello di 3,45 metri; il dislivello si sviluppa in senso anche trasversale poiché Via XXX Aprile attraversa il lotto in direzione Maser passando da +3,55 a +1,93 in corrispondenza dell’incrocio con Vicolo XXX Aprile.
La disamina di questi aspetti legati al sito è stata affrontata contemporaneamente agli input dell’Amministrazione e della Dirigenza scolastica rispetto alle varie tematiche sul funzionamento del complesso:
- Realizzazione di un’area di sosta per i bus scolastici posizionata centralmente rispetto agli edifici dei due plessi scolastici;
- Separazione dei due plessi e individuazione delle rispettive aree di pertinenza anche esterne;
- Fruibilità indipendente rispetto ai plessi scolastici della palestra e dell’auditorium;
- Realizzazione di palestra omologata Coni per la pallavolo serie regionale con dimensioni dell’area di gioco tali da contenere anche un campo da minibasket e con un’area dedicata alle tribune per il pubblico;
- Realizzazione di un campo da gioco esterno;
- Posizionamento della direzione didattica nel plesso della scuola primaria;
- Creazione di percorsi di collegamento coperti e protetti dalle aree pubbliche ai vari ingressi del complesso.
La viabilità e gli accessi
Lo studio del sistema della viabilità è stato il punto di partenza per l’impianto volumetrico del complesso: l’area di sosta principale, quella con sosta anche per i bus, è stata disposta parallelamente a Via XXX Aprile con un’ampia rientranza all’interno del comparto in ampliamento all’attuale piazzale asfaltato: tale ampliamento avverrà grazie al reimpiego del materiale in sito che innalzerà il piano del nuovo parcheggio seguendo l’andamento, anch’esso decrescente verso Maser, della strada provinciale.
L’innesto su di Via essa avviene in due soli punti: uno per l’accesso, a distanza sufficiente dall’incrocio con Vicolo XXX Aprile e uno in uscita.
I posti auto ricavati sono 39 e l’area per la sosta bus prevede la sosta di due mezzi.
Le aree pedonali sono ricavate lungo la Strada provinciale e ai margini dell’area di sosta in continuità entrambe con il percorso proveniente dal centro di Cornuda. È previsto un percorso di collegamento pedonale anche nord-sud posto al limite est del lotto che unisce Via XXX Aprile con Via Fallaci.
Il limite del marciapiede pubblico segna anche il limite dell’area scolastica che viene recintata ed ha 3 accessi pedonali: uno in corrispondenza dell’ingresso alla secondaria, uno della primaria, e uno dell’area retrostante la palestra. Le aree pertinenziali della scuola secondaria sono chiaramente delimitate sia rispetto alle aree pubbliche sia rispetto a quelle della futura scuola primaria.
Il posizionamento degli edifici ad una quota pari a 2,6 m inferiore rispetto a quello dell’accesso dalla strada principale è stato un importante input progettuale in quanto ha determinato la necessità di pensare il complesso come ai piedi di un lieve pendio formato da un sistema di rampe che garantissero la completa accessibilità di ogni ingresso.
Il sistema di parcheggi che interessa anche l’area di risulta a sud, oggetto solo parziale del primo stralcio, è stato pensato a servizio del plesso della primaria che avrà il suo ingresso principale proprio da Via Fallaci nella logica di separare i flussi di accesso al polo in più percorsi. Il collegamento con Vicolo XXX Aprile determina anche un allargamento di quest’ultima sede stradale affinché possa considerarsi strada a doppio senso nei parametri della norma previsti per strada urbana di tipo F come la stessa Via Fallaci che viene ampliata, nel nuovo tratto, di circa 50 cm rispetto al tratto esistente.
Le previsioni volumetriche del secondo stralcio sono puramente indicative poiché la sagoma potrà svolgersi all’interno dell’area individuata per l’intero stralcio.
L’impianto generale
L’impianto si articola con una forma ad L con i lati, formate da profili frastagliati, disposti verso il confine est e verso Via Fallaci, ovvero verso sud; il volume dell’edificio si origina al limite dell’area di parcheggio della provinciale parzialmente seminterrato in modo da ridurre la percezione della vastità del complesso arrivando dal centro di Cornuda. A partire dalla quota del parcheggio si sviluppa per raggiungere la quota d’imposta del piano terra superando il dislivello con una serie di rampe, di cui le più lunghe formano il profilo della palestra verso la corte.
Un alto portico accoglie gli utenti all’ingresso dal parcheggio e li conduce ai vari ingressi del complesso che sono in sequenza: ingresso alla palestra del pubblico, ingresso all’auditorium, ingresso alla palestra degli atleti, ovvero ingresso spogliatoi, ingresso alla scuola secondaria.
A partire dal taglio netto della prominenza verso il parcheggio la copertura del portico segue una sagoma flessuosa che segue la pendenza della rampa di discesa e per poi raccordarsi in vari punti all’andamento delle coperture del fabbricato in modo da realizzare un unico grande tetto a falde con geometrie complesse che seguono l’articolazione dei volumi sottostanti ma segnandoli con grandi curve verso l’alto o verso il basso.
Layout degli spazi interni
Il complesso si compone di tre oggetti , scuola, palestra e auditorium, che devono avere un funzionamento indipendente ma al contempo devono garantire le necessarie interrelazioni; palestra e auditorium sono innanzitutto spazi di servizio alla scuola e quindi deve essere garantito in collegamento diretto con gli spazi scolastici, collegamento che deve essere tuttavia sezionabile sia sotto il profilo degli accessi e della prevenzione incendi, in quanto rappresentano attività distinte e autonome, sia sotto il profilo impiantistico.
La sequenza che viene a crearsi tra queste tre funzioni garantisce tale indipendenza ed interrelazione.
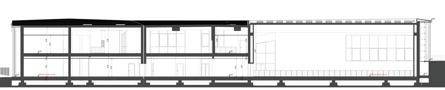
L’impianto planimetrico della scuola è stato studiato al fine di ottimizzare l’esposizione solare delle aule che risultano tutte disposte verso sud; al piano terra si trovano 3 aule e 3 laboratori lungo tale lato mentre sui lati nord ed est, ovvero verso la corte e verso il confine si trovano i servizi, la sala insegnanti, la sala del referente di plesso, la sala assistenti e i servizi del personale oltre ad un locale tecnico.
Al piano primo si trovano altre 6 aule per la didattica unitamente ad un’aula per il sostegno, l’aula di musica, la biblioteca ed i servizi igienici per gli alunni ed un locale infermeria.
Tutte le funzioni si svolgono attorno ad un grande volume centrale che rappresenta l’atrio di ingresso ma anche il nucleo del sistema di connessione tra tutti gli spazi dell’edificio; una scalinata affiancata da una gradonata collega il piano terra al piano primo le cui aule e si affacciano tramite un ampio ballatoio su questo grande volume con copertura in legno a vista che lascia intravedere la complessità delle coperture soprastanti.
L’auditorium si trova al piano primo ed ha un vano scala con ascensore dedicato; è un’ampia sala con 196 posti a cui si aggiungono gli oratori fino a 200 presenze preceduto da una sala con servizi ed ha l’uscita di sicurezza sul retro dell’edificio. Il collegamento con la scuola avviene tramite un locale di filtro con un piccolo deposito.
Gli spazi per le attività scolastiche sono stati dimensionati come previsto nel DM. 18/12/1975Gli spazi destinati ad ufficio non stati inseriti in quanto la dislocazione della direzione didattica del plesso è prevista nell’edificio che ospiterà la scuola primaria.
La palestra

La palestra è immediatamente fruibile dal parcheggio e dalle aree esterne; è prevista la netta separazione tra flusso del pubblico e degli atleti.
L’area di gioco ha caratteristiche dimensionali tali da ospitare un campo da pallavolo regolamentare; la copertura è formata da travi in legno binate che lasciano un’altezza utile sottotrave di 7,20 m. La pavimentazione dell’area di gioco della palestra Parquet sportivo in legno.
L’area del pubblico, con ingresso indipendente, è occupata da tribune telescopiche retrattili per avere la massima flessibilità dell’uso anche di questo spazio e possono ospitare 150 spettatori.
Le uscite di sicurezza sia dell’area gioco che di quella spettatori sono disposte su lati contrapposti: due di esse si trovano in un corridoio interrato che tramite una serie di rampe, quindi nella massima garanzia di accessibilità, conduce alla quota dei percorsi esterni sul retro della palestra.
Gli spogliatoi della palestra sono dimensionati ai fini dell’omologazione Coni per serie regionale ed hanno accesso indipendente; sono formati da due spogliatoi per atleti che prevedono l’utenza di due squadre di pallavolo e due spogliatoi per istruttori/arbitri con numero 2 utenti ciascuno, e un’infermeria con bagno riservato. Il deposito della palestra è direttamente accessibile dall’area di gioco. Il pubblico della palestra anche ha servizi ed area di primo soccorso riservata. L’accesso tra la scuola e la palestra avviene tramite gli spogliatoi.























