Quello che all’esterno è un semplice edificio commerciale prefabbricato, nasconde all’interno un impianto – unico nel suo genere nella regione – attrezzato con sette campi per giocare a tennis sulla sabbia, proprio come in spiaggia. E nella stessa struttura, per rilassarsi, un moderno centro benessere.
Beach tennis a Imola (Bologna)

Moreno Mannini è un ex calciatore di serie A e nazionale italiana che, insieme ad un gruppo di amici imprenditori locali ed altri ex calciatori di serie A, hanno ideato un progetto di business basato su fenomeni sportivi quali beach volley e beach tennis (racchettoni), che negli ultimi anni stanno assumendo dimensioni sempre più rilevanti.
Più veloce del tennis e più spettacolare del volley, il beach tennis è un incrocio tra il tennis e la pallavolo ed è oggi praticato in tutte le spiagge del mondo ed in particolare sulle spiagge della riviera romagnola dove presumibilmente è nato agli inizi degli anni ottanta.
Ad oggi esistono pochi impianti che ospitano campi da beach tennis al coperto, quasi sempre all’interno di tensostrutture, e che risultano perennemente occupati per 7 giorni alla settimana con la necessità per gli atleti di prenotarsi con larghissimo anticipo.
La collocazione di campi da beach tennis in un immobile in muratura consente di prevedere un’altezza adeguata (oltre 8 metri) e condizioni ambientali e di gioco ottimali: ecco pertanto l’idea di una struttura adeguata in Imola, unica nel panorama locale, tale da ricreare condizioni ottimali di gioco, di salubrità e funzionalità complessiva dell’ impianto (spogliatoi, ecc.), tale da consentire di intercettare una base enorme di praticanti, in particolare in una zona dove questo sport è di casa.
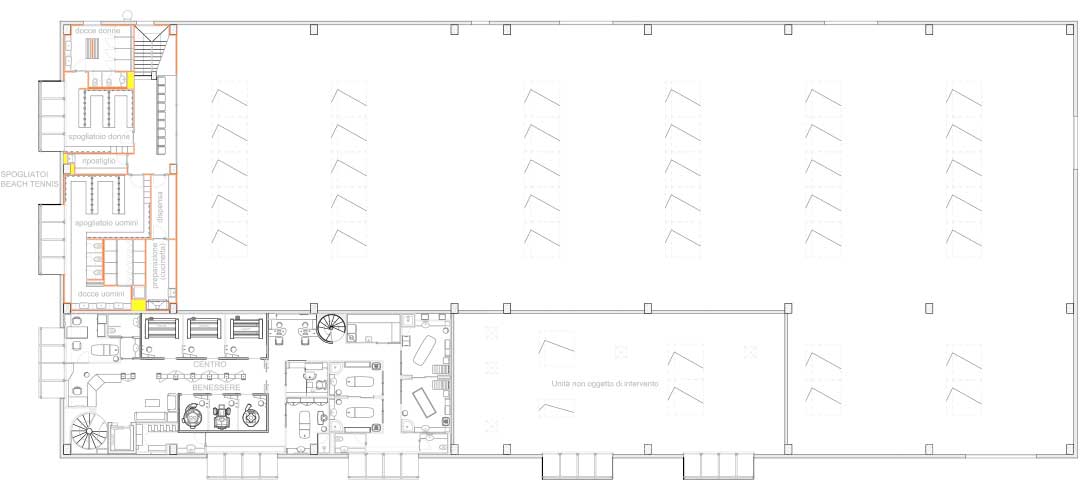
L’immobile ha una superficie complessiva di mq. 1510 al piano terra destinata ai campi da gioco, e sempre sullo stesso piano presenta l’ingresso con la zona bar e i bagni per i clienti; su un soppalco sono stati realizzati i bagni e gli spogliatoi, mentre all’esterno è presente un’area cortilizia destinata a parcheggio e a verde di circa mq. 2.750.
La gestione prevede di organizzare eventi a livello internazionale delle due discipline di beach volley e beach tennis.
Le pareti verticali in cartongesso che definiscono l’allestimento degli ambienti, hanno isolamento acustico e termico con doppia parete ed intercapedine in lana di roccia, e sono tutte in materiale idrorepellente in modo che l’umidità prodotta non venga assorbita; sono state realizzate in muratura solo le pareti adiacenti alla zona dei campi da gioco, per una resistenza migliore contro gli urti delle palline.
L’illuminazione riguardante i campi è composta da 6 lampade per ogni campo a ioduri metallici.
Il sistema di riscaldamento e raffrescamento del beach tennis si suddivide in due parti: un impianto a pannelli radianti a pavimento posti circa a cm 40 sotto la sabbia nei sette campi di gioco; mentre all’interno della zona ingresso – bar e negli spogliatoi del piano primo si utilizzano dei ventilconvettori ad esclusione della zona docce dove si è scelto di utilizzare i radiatori a parete per evitare movimenti d’aria. Il sistema meccanico di ventilazione e ricambio dell’aria della zona spogliatoi del piano primo viene garantito attraverso tubazioni di mandata e di ripresa che prelevano l’aria degli ambienti attraverso delle griglie posizionate a soffitto e a parete per poi espellerla all’esterno del fabbricato. L’aria, prima di essere immessa all’interno degli ambienti, viene preventivamente scaldata o raffreddata in base alla temperatura esterna, tramite uno scambiatore di calore. Al piano terra il sistema di ventilazione e ricambio dell’aria viene realizzato all’interno dei bagni e nei locali del centro benessere, tramite l’espulsione da griglie poste a soffitto e ripresa d’aria attraverso delle griglie di transito posizionate nelle porte dei locali.
Il centro benessere
Il centro benessere si avvale di un’area completamente appartata con percorsi detossinanti mirati alla cura del corpo e della mente, che comprendono la piscina idromassaggio, la sauna, il bagno turco, le docce emozionali e la zona relax. Il percorso benessere ha una durata massima di circa due ore: a pieno regime la presenza massima contemporanea di clienti può variare dalle dodici alle quattordici persone.
La piscina idromassaggio ha le dimensioni di 270 x 540 cm, con profondità di cm 120 nella parte più alta e di cm 90 nella parte in cui sono collocate le sedute dell’idromassaggio; vi si accede tramite alcuni gradini interni con apposito corrimano. Proseguendo il percorso si raggiunge la sauna delle dimensioni di cm 250 x 250 con un’altezza di cm 210 costituita da una struttura autoportante in pannelli perlinati, con pareti e panche in legno per una migliore distribuzione del calore. Adiacente alla sauna è previsto il bagno turco delle dimensioni di cm 250 x 250 con un’altezza di cm 240, realizzato con una struttura portante in polistirene espanso e pannelli componibili presagomati rivestiti internamente con mosaico: la struttura è caratterizzata da un elevatissimo isolamento termico e assoluta impermeabilità . All’interno del bagno turco si posizionano due piastre doccia ad incasso, un dosatore di essenze profumate, l’impianto per la musicoterapia ed un termostato per il controllo e regolazione delle temperature. Le docce emozionali poste di fronte alla sauna ed al bagno turco hanno dimensioni cm 125 x 200 con altezza di 250: tali docce utilizzano tecniche di cromoterapia e aromaterapia differenti tra loro. In prossimità della sauna e del bagno turco troviamo l’impianto per la cascata di ghiaccio consistente nella produzione regolare di ghiaccio che, raccolto in un serbatoio, può essere utilizzato dalla clientela per un rapido ed intenso raffreddamento del corpo dopo il trattamento della sauna o del bagno turco. Successivamente si attraversa il tunnel emozionale della lunghezza di 5 m e larghezza 1 m che, attivabile tramite un singolo pulsante, avvia un processo di combinazioni di luci, aromi e getti d’acqua. Infine si accede alla zona relax composta da sei chaise-longue ed un mobile al centro della stanza in cui sarà sistemato l’impianto per musicoterapia, diffusore per aromaterapia ad erogazione programmata di quattro essenze, il tutto gestito da una centralina digitale per la gestione integrata e programmata di suoni, luci ed aromi.
In adiacenza al centro benessere è presente infine una palestra dedicata al corpo libero e area con attrezzature sportive.
L’impianto di riscaldamento del centro benessere viene integrato tramite pannelli radianti a pavimento posizionati su tutto il piano terra e piano soppalco rendendo così gradevole il sostare negli ambienti a piedi nudi; il calore prodotto in eccesso, contribuirà all’eliminazione dell’umidità prodotta all’interno del centro.
Tutte le attività esistenti all’interno del fabbricato sono collegate tra loro dando così la possibilità di accedere alla zona bar in comune, oltre che alla zona esterna per il relax nel verde, sia da parte dei fruitori del centro benessere che da parte dei giocatori di beach tennis.










