Una fra le più antiche associazioni italiane dedicate al mondo dei cavalli ha realizzato la propria nuova sede tra i prati a sud di Torino, inaugurata due anni fa, a pochi passi dal parco di Stupinigi: la struttura si è giovata della prefabbricazione per mantenere contenuti i costi di costruzione, e con l’opportuno uso del legno per copertura e finiture è risultata comunque elegante e razionale.
Orbassano (Torino): la nuova sede della Società Ippica Torinese dal progetto alla realizzazione: un caso concreto

La storia
La SIT (Società Ippica Torinese), “scuola di equitazione a 360 gradi”, è fra le più antiche e gloriose associazioni italiane degli amanti del cavallo e delle relative attività sportive.
Nata nel 1932 affiancandosi all’ancora più antica “Società Torinese per la Caccia a Cavallo” e rifondata con un nuovo statuto nel 1959 con lo scopo dell’insegnamento delle discipline ippiche e di favorirne le attività sportive (numerosi suoi cavalieri hanno primeggiato in campionati italiani, concorsi internazionali e olimpiadi), la SIT ha storicamente effettuato, per le proprie sedi, scelte di alto profilo.
Nei primissimi anni del ‘900 si insediò nel preesistente “Maneggio Gallina”, sito in corso Montevecchio, progettato da Pietro Fenoglio e Arturo Premoli, ed ora scomparso); nel 1938 realizzò la sede di corso Massimo d’Azeglio, su progetto di Carlo Mollino e Vittorio Baudi di Selva, che purtroppo, con giustificazioni non tutte convincenti, l’Amministrazione Comunale di Torino decise di abbattere nel 1959.
Infine, furono incaricati gli architetti Roberto Gabetti ed Aimaro Oreglia d’Isola per la realizzazione di un nuovo complesso nel Comune di Nichelino, inaugurato nel 1961.
Con il passare degli anni, l’obsolescenza della struttura, l’urbanizzazione dell’intorno e alcune discutibili scelte urbanistiche comunali, resero anche questo non più funzionale alle esigenze dell’associazione.
Si arriva così al 2009 quando la SIT commissiona allo Studio Deabate il progetto di una ulteriore nuova sede in Comune di Orbassano, poco fuori del parco di Stupinigi. Per accordo con la stessa società uscente, a differenza delle precedenti la sede di Nichelino conserverà però la sua struttura architettonica, firmata da Gabetti e Isola, pur con nuove funzioni.
Il progetto
Gli architetti incaricati, pur riconoscendo l’ampiezza delle premesse storiche, hanno cercato di evitare i condizionamenti formali e tipologici che ne potevano conseguire, fondando il loro lavoro su alcune semplici riflessioni: la necessità di prevedere una presenza forte, ma al contempo non prevaricante il carattere dell’ambiente circostante; stabilire un rapporto effettivo con lo skyline della circostante catena montuosa; mantenere la compattezza dell’insieme delle funzioni (i maneggi coperti e scoperti, le scuderie, la club-house) per ridurre al massimo il consumo di suolo. Il tutto tenendo presente l’obiettivo del benessere degli animali, sia stabulati sia durante il loro lavoro didattico, ludico o agonistico.
Non ultima, infine, l’economicità dell’intervento, il cui budget doveva ritenersi tassativamente bloccato.
Da queste riflessioni sono derivati i principali indirizzi progettuali: un impianto planivolumetrico di massima chiarezza geometrica; la sottolineatura, sia formale che per mezzo dell’uso del colore, del corpo della club-house; il disegno della copertura dei maneggi inteso come un segno ondulato continuo che si proietta sullo sfondo delle montagne; l’utilizzo della prefabbricazione per le coperture dei campi (in legno lamellare), per le scuderie e per il corpo della club-house (in elementi di c.a.); l’illuminazione e l’areazione di ogni singolo box; la semplicità e la “riconoscibilità” dei percorsi.
L’insediamento del centro ippico sull’area prescelta, confinando con il parco di Stupinigi, se da una parte permetteva di godere di molti ovvi benefici (si ricorda per inciso che nel 2003 proprio in questo parco la SIT aveva organizzato l’ultimo importante concorso internazionale di “completo” valido per la World Cup), dall’altra richiedeva una progettazione che approfondisse le problematiche ambientali che ne derivavano. Per tale ragione, già in una fase preliminare, furono interessate le Autorità preposte alla salvaguardia dei beni ambientali e paesaggistici ed alla gestione del parco e dei canali irrigui presenti nell’area, concordando una serie di interventi di mitigazione su una vasta area circostante l’insediamento, con la previsione di piantumazioni, bonifiche e migliorie alla viabilità.
L’uso diffuso della prefabbricazione ha permesso di accelerare i tempi di cantiere e di contenerne i costi, ma ha imposto la rinuncia a particolari costruttivi sofisticati e a materiali raffinati, proponendo una visione generale del progetto piuttosto sobria e non “arrogante”, che ha comportato la semplificazione degli elementi costitutivi e l’attenzione ai componenti accessori, così da far scrivere ai progettisti, in occasione di una presentazione del loro lavoro, “…che con queste premesse tecniche costruttive (…) occorrerà attendere che crescano le siepi e le piantumazioni, che i prati si inverdiscano (…), che i materiali e i loro colori possano “rilkianamente” invecchiare, che i cavalli corrano e saltino, che la club-house prenda vita (…) per sperare che i difetti che oggi sono inevitabilmente rintracciabili sappiano scomparire trasformandosi in pregi…”.
La distribuzione
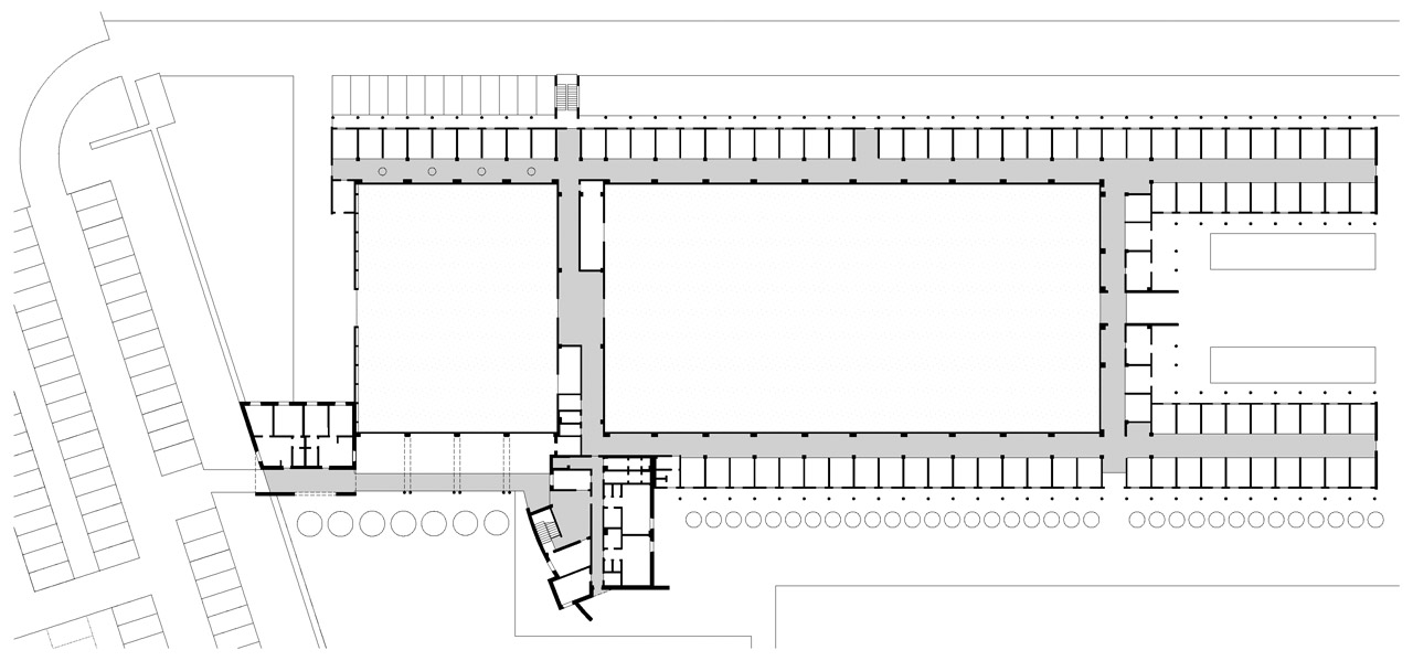
La pianta del piano terra del complesso evidenzia la semplicità e la compattezza dell’organizzazione planivolumetrica delle diverse funzioni.
I due maneggi sono allineati sull’asse che “organizza” e caratterizza tutto il complesso: i corpi dedicati ai box dei cavalli affiancano longitudinalmente i maneggi, riducendo e razionalizzando così i percorsi interni.
Il fabbricato della foresteria-guardiania, posto a capo di uno degli assi longitudinali, segnala l’accesso e il percorso che conduce all’ingresso della club-house, la quale, inserendosi tra i due maneggi, ne diventa il fulcro funzionale.
I servizi comuni per i cavalli e per la manutenzione (gli spazi dedicati alla “mascalcia” ed alla pulizia degli animali, il cortile di “lavoro”, la “giostra”, la letamaia, il magazzino foraggi…), posizionati simmetricamente lungo l’asse longitudinale, sfrangiano a nord il volume generale verso gli spazi liberi dell’area utilizzati a paddock, ove sono previste mitigazioni ambientali realizzate con piantumazioni di alberi e di siepi.
La club-house si sviluppa su due piani ; il piano terra che comprende una segreteria, due sale di riunione e gli spogliatoi ed il primo piano con un bar-ristorante ed i relativi servizi, un grande terrazzo che si affaccia sui campi esterni, una sala di soggiorno con ampie vetrate affacciantesi sui due campi coperti sottostanti, così come la contigua “tribuna” da cui, attraverso un vuoto centrale, è possibile osservare anche il sottostante percorso che i cavalli compiono per raggiungere i maneggi.
Cercando di evitare agli animali i disagi che troppo spesso subiscono, particolare attenzione è stata posta alla dimensione dei box dei cavalli che, oltre a rispettare le ultime norme vigenti in materia, sono stati dotati singolarmente di affacci sia verso l’interno che verso l’esterno; risultano inoltre molto luminosi grazie alle ampie aperture poste sui vasti corridoi di distribuzione sui quali si aprono.
I campi indoor
Per quanto riguarda i due campi coperti è stato sufficiente predisporre un sottofondo in stabilizzato spianato con macchina a guida laser, su cui è stata stesa la sabbia recuperata dagli impianti preesistenti della SIT. In particolare, il materiale prelevato dal campo esterno della vecchia sede, benché ormai logoro per un utilizzo outdoor, può ancora avere una vita utile se posto al coperto.
In superficie è stata aggiunta una piccola quantità di sabbia nuova, ottenuta dalla frantumazione di rocce di quarzo, venendo a costituire uno spessore complessivo di 12 cm.
Il campo outdoor
Il campo esterno ha una dimensione di 120 x 50 metri, ed è realizzato con un primo rilevato in materiale riciclato da macerie di demolizione su cui è posato uno strato di finitura di 15 cm circa di stabilizzato di cava, modellato a quattro pendenze, una per lato del campo, allo scopo di far defluire le acque meteoriche all’esterno del campo stesso.
Come contenimento della sabbia, che ha uno spessore di 12 cm, è stato posato un cordolo in cls della stessa altezza.
E’ stato così realizzato un drenaggio orizzontale: la maggior parte dell’acqua piovana scorre sulla superficie del manto di sabbia verso i lati del campo e ne fuoriesce superando il cordolo e solo in minima parte filtra nel sottofondo del campo disperdendosi poi nel sottosuolo.
L’intera area è stata quindi divisa in due campi di 90 x 50 e 30 x 50 m, con fondi differenti.
La porzione più piccola, poiché è utilizzata per le lezioni della scuola di equitazione e non per il salto ostacoli, presenta un fondo più morbido anche se meno performante, ottenuto miscelando un tessuto non tessuto con della sabbia silico-feldspatica.
Il campo di 90 x 50 è invece realizzato con una miscela di sabbie silicee naturali importate dalla Francia, di colore bianco-giallo, addizionate a loro volta con tessuto non tessuto.
Ttutte le sabbie utilizzate per i campi indoor e outdoor sono definite come microsabbie, con una dimensione dei granuli inferiore ai 500 micron.
In alternativa al drenaggio orizzontale, i campi per equitazione possono essere realizzati con sottofondo a drenaggio verticale, più performante nello smaltimento delle acque benché più costoso, o ancora con terreni cosiddetti all-weather in cui sabbia e tessuto non tessuto sono miscelati con oli o paraffine liquide rendendo superflua l’irrigazione.
Il disegno dei prospetti
Il prospetto che si affaccia sui due campi esterni evidenzia alcuni principi del progetto.
In particolare si possono annotare la centralità dei maneggi coperti nel confronto dell’intero complesso e l’andamento a onde della loro copertura, che è percepibile dall’esterno come il “motivo” che pone in relazione tutto il complesso con lo skyline delle montagne e dall’interno come fattore di alleggerimento della struttura lignea in grado di omogeneizzare la luce naturale che perviene dai settori trasparenti della copertura.
L’uso di materiali traslucidi e non completamente trasparenti per i grandi lucernari impedisce all’interno il passaggio diretto dei raggi solari, inopportuno per i cavalli al lavoro; mentre all’esterno, riflettendo i colori e le luci del paesaggio circostante, collabora all’inserimento nel variegato ambiente circostante.
La ricurva parete del corpo della club-house, rivolta verso la strada provinciale di accesso, assume un ruolo particolarmente significante, insieme con la reiterazione di elementi colorati (la parete della club-house, la pensilina di ingresso, i pilastri del portico che ombreggia gli affacci dei box dei cavalli)
Come materiale di tamponamento esterno si evidenzia inoltre l’uso ripetuto del materiale ligneo, utilizzato con pannelli di X-Lam (in legno lamellare a strati incrociati).
Il prospetto laterale mette altresì in risalto l’andamento a gradoni dei corpi delle scuderie, nonché la sequenza dei diversi elementi funzionali del complesso che si articola attraverso l’ingresso, la foresteria, il percorso-pensilina tangente al maneggio dei pony e della scuola, il corpo della club-house, l’affaccio delle scuderie e, infine, gli spazi dei servizi accessori per i cavalli.
L’ingresso e la club-house
Dalla sezione trasversale sul maneggio piccolo e sul percorso di ingresso alla club-house, si può rilevare come il progetto abbia assegnato particolare importanza ad alcune funzioni/elementi architettonici.
Tutta la zona di ingresso (a cui si accede dall’ampio parcheggio) é risolta come un percorso pavimentato che porta alla club-house (e da essa ai maneggi e ai relativi servizi), coperto da una sottile pensilina e circondato da aiuole e piccoli alberi. Il maneggio della scuola, che fiancheggia il passaggio, può essere intravvisto attraverso alcune vetrate (rimovibili nella stagione estiva); la sua struttura di copertura riprende, semplificandola, quella del campo principale.
La curva e colorata parete della palazzina della club-house, che rappresenta il vero e proprio fondale di questo percorso, è ritagliata nella sua parte superiore per permettere di inquadrare, dal terrazzo retrostante, i boschi del parco di Stupinigi e il lontano massiccio del Monviso.
I materiali utilizzati per il fianco del maneggio e per gli elementi di “giunzione” con la palazzina della club-house (pannelli coibentati di lamiera preverniciata) sono analoghi per tipo e colore a quelli della copertura; il colore della lamiera è stato studiato per armonizzarsi con quelli dell’ambiente circostante formato da teneri cangianti prati, terreni coltivati, grandi macchie arboree e dalle prime pendici della non lontana catena alpina in cui spiccano, oltre al Monviso, il Rocciamelone, le Levanne e le altre vette delle Alpi Graie.
La struttura coperta
La struttura della copertura del campo coperto principale (m. 35 x 65) è stata pensata completamente in legno. Il primo ordine è composto da travi trasversali, realizzate in un unico elemento lamellare con due appoggi semplici sui pilastri laterali
Il disegno curvilineo del bordo inferiore è derivato da esigenze funzionali (le opportune differenti altezze libere al perimetro ed al centro del campo), dal calcolo strutturale e da esigenze tecnologiche relative alle lunghezze dei tasselli lignei ed ai relativi incollaggi; il profilo rettilineo dei bordi superiori crea l’inclinazione necessaria per lo scolo delle acque piovane.
Sull’estradosso delle travi principali è sovrapposta, appoggiata su piedritti in acciaio di altezza costante, l’orditura secondaria composta da 160 travetti di forma e curvatura identica. Disposti alternativamente, definiscono superfici concave o convesse; dietro la prima serie di travetti curvilinei (esterni ai tamponamenti ed appoggiati sulle teste delle travi in vista) sono sospesi i grondoni per lo scarico delle acque piovane.
Sulle superfici convesse sono posizionati i lucernari continui in policarbonato, su quelle concave pannelli prefabbricati di lamiera trattati con materiale insonorizzante (i cavalli patiscono suoni rimbombanti come quelli prodotti dalla grandine o dalla poggia violenta).
Il distacco tra l’orditura lignea primaria e quella secondaria permette all’interno una distribuzione più omogenea della luce (altrimenti forzata ed indirizzata tra trave e trave) e realizza un distacco tra l’estradosso delle alte travi e l’intradosso della copertura così da renderla continua e spazialmente autonoma.
La tribuna, con un accesso indipendente che funge anche da via di fuga, si affaccia su ambedue i maneggi ed è illuminata zenitalmente; un vuoto centrale permette alla luce di raggiungere il piano terra dove si trova l’area di ingresso ai galoppatoi.
Le murature perimetrali del maneggio maggiore sono realizzate con pannelli orizzontali prefabbricati in c.a. mantenuto a vista, quelle del maneggio più piccolo sono realizzate o con i medesimi pannelli di c.a. o con pannelli di lamiera con faccia a vista fissati ad una struttura lignea.

































