Un intervento radicale su un impianto molto frequentato, sia nell’area dedicata al ghiaccio che nell’area piscine, il quale presentava però condizioni di obsolescenza funzionale e strutturale, e non rispondeva più alle norme di esercizio. I lavori sono cominciati nel marzo di quest’anno, e si prevede possano concludersi in 14 mesi.
Varese: riqualificazione del Palazzo del Ghiaccio

Lo stato di fatto
Il complesso del Palazzo del Ghiaccio di via Albani a Varese è stato edificato nel 1974 su progetto dello Studio Ambrosetti su un lotto di circa 13.000 mq adiacente a preesistenti strutture sportive per il tennis.
L’edificio si presenta come un unico corpo di fabbrica a copertura curva a campata unica, retta da archi di legno lamellare, che insistono su plinti di calcestruzzo, al quale si appoggiano le strutture di tamponamento verticale, che per buona parte del loro sviluppo sono vetrate.
La copertura è costituita da un manto di lamiera grecata isolato sorretto da una struttura secondaria in legno e da un assito di finitura. Il tutto risulta in avanzate condizioni di deterioramento, con problemi di infiltrazioni, condense, sfondellamenti.
Tutte le strutture sottostanti sono staticamente autonome dall’involucro e sono realizzate in calcestruzzo.
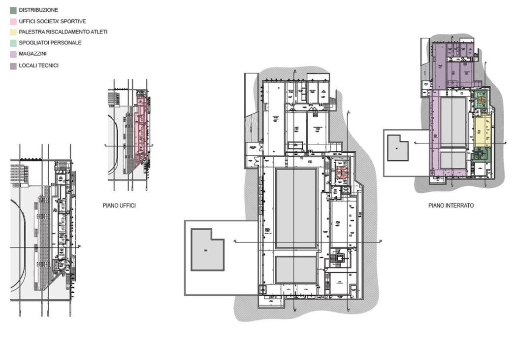
L’impianto, pur essendo costituito da un unico corpo di fabbrica, è articolato in due zone sportive ben distinte: la zona ghiaccio e la zona piscine. Tra loro è posta la zona servizi, organizzata su quattro livelli di cui tre fuori terra.
La zona dedicata al ghiaccio è costituita da una pista per il pattinaggio e l’hockey, di dimensioni 60×30 m, dotata di gradinate per il pubblico su tre lati per una capienza complessiva di 1.462 posti.
Sotto le gradinate trovano posto 9 spogliatoi di diversa metratura, dedicati agli atleti delle diverse discipline, agli arbitri ed agli accompagnatori, per le manifestazioni ufficiali.
Ci sono inoltre i servizi igienici per il pubblico ed uno spazio destinato al noleggio dei pattini per l’attività libera.
La zona adibita a piscina è dotata di una vasca natatoria da 25×12,5 m (con altezza variabile di 1,9/2,55 m) e di una vasca di apprendimento da 12,5×8 m (altezza variabile di 0,8/0,95 m).
Gli spogliatoi degli utilizzatori sono collocati al piano terra della zona servizi, che separa l’area Ghiaccio da quella delle Vasche. Gli istruttori e gli addetti hanno invece spogliatoi al piano interrato dello stesso corpo servizi.
Non esiste un collegamento realmente fruibile tra piano vasca e giardino antistante, se non attraverso delle semplici porte di emergenza.
Il corpo servizi centrale è accessibile dal parcheggio antistante attraverso una scalinata che, senza garantire un comodo superamento delle barriere architettoniche se non facendo un lungo giro, conduce allo spazio biglietteria. Questo, nonostante le ridotte dimensioni, distribuisce i flussi del pubblico e degli atleti mantenendo presidiati tutti gli accessi.
Gli spogliatoi della piscina, come detto, trovano posto al piano terra ed a quello interrato, insieme ad alcuni magazzini ed al cunicolo impianti.
Al piano primo del Palazzo del Ghiaccio è collocato il Bar, accessibile anche dalle gradinate della zona ghiaccio e con la possibilità di vedere le vasche della piscina.
Al piano secondo una sala polifunzionale viene utilizzata principalmente come spazio di riscaldamento per le atlete del pattinaggio di figura, essendo accessibile solo dalla zona ghiaccio. Allo stesso modo, i locali retrostanti sono adibitili ad ufficio per associazioni sportive e ad alloggio per il custode (quest’ultimo ormai da tempo inutilizzato) che si sviluppa su due livelli (volume aggettante rispetto alla copertura curva).
Progetto di ristrutturazione e adeguamento
Il progetto di fattibilità per l’intervento sul Palazzo del Ghiaccio è stato redatto tenendo già in considerazioni alcuni tra gli aspetti più tipici delle successive fasi della progettazione, ma che tuttavia non possono non essere filo conduttore fin dai primi approcci.
Sicurezza: intesa come sicurezza dei lavoratori addetti alle opere, come sicurezza nell’uso degli spazi da parte degli utenti, e come sicurezza connessa alle attività di conduzione, manutenzione ordinaria e straordinaria.
Accessibilità: abbattimento delle barriere architettoniche esistenti e proposte gestionali tese ad aumentare l’offerta di attività rivolte a persone diversamente abili o con handicap fisici, oltretutto che usufruiscono già oggi degli spazi esistenti in condizioni assolutamente precarie.
Affidabilità funzionale: perseguita attraverso la scelta di tipologie costruttive e d’intervento con caratteristiche di semplicità e di qualità.
Semplicità ed economicità manutentiva: che dovrà essere frutto di una scelta di materiali e apparecchiature caratterizzati da ridotte esigenze di manutenzione.
Durabilità: perseguita attraverso l’impiego di tipologie costruttive e specifici materiali di robusta e durevole costruzione.
Riduzione dei consumi energetici: attraverso scelte ottimizzate sotto l’aspetto tipologico dotate di elevata efficienza energetica si otterrà un edificio ad altissima prestazione energetica Il cui fabbisogno energetico molto basso o quasi nullo sarà coperto in misura significativa da energia da fonti rinnovabili, prodotta in situ
Riduzione dell’impatto ambientale: perseguita attraverso un’elevata efficienza energetica, attraverso l’impiego, ove possibile, di prodotti e materiali a ridotto impatto ambientale ed il contenimento delle cause di immissioni di rumore nell’ambiente.
Il progetto proposto prevede due distinti interventi. Uno di sostituzione dell’intero involucro del Palazzo del Ghiaccio, comprensivo della rimozione del manto di copertura, rimozione completa della struttura principale e secondaria e sostituzione con un nuovo sistema similare in legno lamellare identico nella geometria. L’intervento comprende inoltre la sostituzione completa di tutte le parti finestrate con nuove facciate vetrate ad elevata performance energetica e il potenziamento delle parti opache con sistemi a cappotto. Si otterrà quindi una ristrutturazione integrale portando l’edificio alle caratteristiche NZEB (Nearly Zero Energy Building).
Il secondo intervento è quello di riorganizzazione dei layout interni che prevede l’ampliamento dell’edificio verso sud, la riorganizzazione dei sistemi di risalita e delle distribuzioni in generale, la revisione di tutti gli spazi aperti al pubblico ma anche di servizio, il rifacimento della pista da ghiaccio e il rifacimento di tutti gli impianti.
L’intervento di revisione dei layout
L’intervento prevede la realizzazione di una bussola esterna, a quota parcheggio, che consenta di accedere alla biglietteria attraverso una scala calda e protetta, completa di un montascale per il superamento delle barriere architettoniche.
La biglietteria continua a funzionare da nodo di smistamento dei diversi flussi, anche grazie a un sistema di controllo degli accessi elettronico e con tornelli, in forza di una superficie più generosa della precedente. In particolare filtra l’accesso dei utenti della piscina, quelli del pattinaggio libero, e quelli che accedono ai servizi dei piani superiori: Bar e Palestra fitness.
La zona piscine prevede la realizzazione di un ampliamento verso sud per dare spazio alla nuova e più ampia vasca di apprendimento. Infatti, sull’impronta di quella precedente trovano posto i nuovi spogliatoi per il pubblico ma anche per gli istruttori, che non dovranno più accedere agli interrati. Rimangono invariate le dimensioni della vasca da 25×12.5 m.
La profondità verrà però ridotta portandola da mt 1,22 a mt 1,50 per ottimizzare i consumi e la gestione dello spazio acqua.
Verrà poi aggiunta una vasca a forma libera avente superficie pari a 115,00 mq e profondità 1,25 m costante. Questa vasca sarà utilizzata per i corsi di avviamento al nuoto e per i corsi di idrobike ed aquagym.
Per la vasca Nuoto si prevede l’adeguamento dell’impianto di filtrazione, di disinfezione e della vasca di compenso che dovranno ottemperare alla norma UNI-10637, il rifacimento del canale di sfioro attraverso la demolizione del canale esistente e la posa di uno nuovo prefabbricato ridimensionato in base alla nuova portata dell’impianto di filtrazione e da posare nella sua perfetta orizzontalità; il rifacimento dell’impermeabilizzazione a garanzia della perfetta tenuta idraulica della piscina, mediante la posa di un nuovo rivestimento interno in PVC armato.
La nuova vasca verrà realizzata ex novo in C.A. e dotata di impianto di filtrazione, di disinfezione e di vasca di compenso dedicata che dovranno ottemperare alla norma UNI-10637. A garanzia della perfetta tenuta idraulica della piscina, la vasca sarà finita con la posa di un nuovo rivestimento interno in PVC armato antiscivolo nella parte orizzontale.
La creazione di una nuova vetrata che affaccia sullo spazio verde dà l’opportunità di realizzare delle vetrate mobili, a scorrimento verticale, che permettono di smaterializzare il limite tra interno ed esterno per consentire l’utilizzo del nuovo solarium nei mesi estivi.
La realizzazione di un solaio intermedio, rispetto all’attuale “tutta altezza” della zona vasca (che raggiungeva i 12 m) consente, oltre a realizzare un piano aggiuntivo, di ridurre il volume d’aria da scaldare e quindi di contenere i costi per la climatizzazione.
La zona ghiaccio prevede il collegamento con i magazzini al piano interrato grazie ad un nuovo montacarichi di grandi dimensioni.
È previsto inoltre l’ammodernamento di tutti gli spogliatoi, sia a livello di dotazione di servizi che di finiture.
Inoltre è prevista una rimodulazione degli spazi, a discapito del numero degli spogliatoi ma a vantaggio di superfici confacenti alle richieste normative ed alla fruibilità in generale.
Data l’impossibilità di eliminare le barriere architettoniche per il raggiungimento degli spogliatoi sotto le tribune, sono stati inseriti due nuovi spogliatoi al piano terra del blocco servizi completamente attrezzati per i diversamente abili.
Per migliorare l’accessibilità da parte del pubblico durante le manifestazioni sportive, si è previsto un nuovo ingresso, lato nord-est, dal parcheggio antistante l’edificio che permette di non utilizzare la biglietteria principale, che serve anche altre attività, ma di utilizzarne un’altra situata in prossimità della tribuna Nord.
Il pubblico ospite accederà invece da ovest, entrando da via Appiani attraversando il nuovo parcheggio e accedendo da un ingresso dedicato.
È previsto l’ammodernamento di tutte le tribune per gli spettatori Locali e la realizzazione di una nuova tribuna telescopica per gli spettatori Ospiti per un totale di 192 posti a sedere.
L’accesso al Palazzo del Ghiaccio da parte degli atleti è stato separato per locali ed ospiti e lo spazio a loro dedicato è ulteriormente separato da quello per il pubblico secondo le norme di sicurezza per gli eventi sportivi.
Dall’ingresso principale si accede ai piani superiori attraverso un nuovo corpo scale dotato di due ascensori, uno a servizio del Bar, sito al primo livello, ed uno a servizio della nuova palestra fitness, sita al secondo livello sopra le vasche della piscina. La stessa scala ed ascensori collega anche i magazzini al piano interrato, realizzati al posto della vecchia palestra e spogliatoi.
Il Bar è stato mantenuto al piano primo, eliminandone l’aggetto sul lato piscina ma riguadagnando superficie inglobando il ballatoio sul lato ghiaccio. Al piano è previsto, oltre allo spazio somministrazione, una cucina, un magazzino e gli spogliatoi per il personale, che potrà quindi anche essere esterno alla gestione delle altre attività.
La palestra fitness si trova ad una quota intermedia tra quella del bar e quella del piano secondo, che in precedenza ospitava uno spazio polifunzionale.
Qui trovano posto una reception, gli spogliatoi per gli utenti, la sala fitness di oltre 400 mq, depositi per le attrezzature nelle parti la cui altezza è insufficiente alle attività sportive.
Attraverso una breve rampa di scale si raggiunge il piano secondo, sopra il bar, dove trovano posto due sale corsi, una vetrata verso la zona ghiaccio e verso la sala fitness, l’altra invece a doppia altezza (fino a 9 m) costituendo di fatto una piccola torre di vetro che fuoriesce dal volume della copertura curva e che richiama il vecchio aggetto dell’appartamento del custode.
Dalla sala fitness è possibile accedere al terrazzo dove verranno realizzati due campi da Padel, aumentando così l’offerta sportiva.
Gli spazi esterni prevedono la realizzazione di un nuovo parcheggio sulla parte posteriore dell’intervento, con accesso da via Appiani. I posti auto sono destinati ai soli eventi ufficiali, pertanto normalmente risulteranno verdi come il prato circostante, essendo realizzati in prato armato.
Il parcheggio verrà dotato di una pensilina fotovoltaica e di attacchi per la ricarica di auto elettriche.
Il piazzale di manovra sarà in terra battuta per garantire il drenaggio delle acque e sarà sufficientemente ampio da garantire la manovra e la sosta degli autobus per gli spettatori ospiti e per i giocatori.
Tutti i percorsi, sia per l’accesso degli atleti, locali ed ospiti, che per quello degli spettatori saranno realizzati in prato armato, così come la zona solarium in prossimità delle vasche della piscina, per garantire una continuità visiva con il parco circostante oltre che per garantire il massimo drenaggio.
L’immagine architettonica
L’immagine architettonica del nuovo Palazzo del Ghiaccio è caratterizzata da alcuni elementi decorativi aggiunti, più che da una nuova immagine planivolumetrica:
- Il riutilizzo di due travi in legno lamellare, con funzione non portante, che verranno posizionate sul fronte sud, in corrispondenza dell’ampliamento, come ad indicare una virtuale continuazione verso l’esterno dell’edificio.
- L’ampio utilizzo di lamiera metallica color “Gold” a rivestimento delle travi riutilizzate, di diversi dettagli di elementi opachi, come i parapetti delle scale di emergenza o la cornice della nuova vetrata della vasca di apprendimento.
- La realizzazione di vetrate a motivo principalmente verticale con passo variabile ed interrotte orizzontalmente da elementi frangisole sempre color “Gold”.
- L’utilizzo di un rivestimento metallico a pannelli colorati per la copertura che consente la realizzazione di un effetto sfumatura “pixelato” e la possibilità di scrivere dei testi che iconicamente denunciano le attività svolte all’interno.
- La realizzazione di due volumi vetrati in aggetto rispetto al volume preesistente: il box di ingresso in orizzontale e la torre della sala corsi in verticale.
Ne risulta un intervento estremamente conservativo nel suo rapporto con il costruito circostante ma con degli elementi caratterizzanti innovativi ed accattivanti senza essere invasivi.
L’impiantistica
Il progetto prevede la realizzazione degli impianti meccanici a servizio delle strutture secondo le destinazioni d’uso prevalenti delle zone.
La riqualificazione dell’intera struttura prevede la realizzazione di un edificio nZEB (nearly Zero Energy Building).
Con l’obiettivo di minimizzare i fabbisogni termo frigoriferi del centro sportivo si intende massimizzare l’efficienza delle strutture opache e trasparenti con isolamenti performanti andando ben oltre le imposizioni normative.
Un edificio non energivoro consente una progettazione degli impianti di climatizzazione (riscaldamento, raffrescamento e trattamento e rinnovo dell’aria) e di produzione dell’acqua calda sanitaria più efficiente, non sovradimensionata, con costi di manutenzione ed esercizio ridotti.
Sostituendo l’attuale gruppo frigorifero dedicato al palaghiaccio con un’unità ad alta efficienza con recupero del calore “di scarto” si garantisce una sostanziale quota di energia termica a favore dell’impianto di climatizzazione invernale e di produzione dell’acqua calda sanitaria. Un generatore in pompa di calore, anch’esso con recupero, copre il residuo fabbisogno termico dell’impianto, sfruttando l’energia rinnovabile dell’aria esterna e del campo fotovoltaico previsto.
Un sistema di pannelli solari termici e una linea di recupero del calore dell’acqua delle docce vengono utilizzati per il preriscaldo dell’acqua sanitaria in tutto il Palazzo del Ghiaccio.
L’acqua sanitaria è preliminarmente filtrata e quella destinata alla produzione di acqua calda è addolcita fino a 10°Fr e additivata con agenti protettivi e biocidi per l’eliminazione di possibili patogeni, tra cui la legionellosi.
L’impianto di riscaldamento e raffrescamento, con distribuzione ai terminali idronici in parallelo (ventilconvettori), è dimensionato per far fronte ai carichi di progetto, tenuto conto della contemporaneità, con una flessibilità che favorisce l’uso intermittente. La regolazione avviene attraverso una centralina climatica e per singolo ambiente.
L’aria primaria distribuita negli ambienti attraversa due stadi di filtrazione, ne viene effettuato il recupero dell’energia e ulteriormente trattata per essere immessa in ambiente nelle migliori condizioni di comfort per gli utenti.
La rete di raccolta e scarico delle acque nere interna agli edifici è prevista con tubazioni a carica minerale ad alto potere fono assorbente.
L’intero impianto meccanico è supervisionato e controllato in remoto, tutti i componenti dell’impianto sono previsti ad alta efficienza energetica e il sistema di regolazione è progettato per favorire il comfort e la flessibilità d’uso con particolare attenzione ai consumi.
L’impianto di filtrazione
L’impianto di circolazione, trattamento, disinfezione e qualità dell’acqua di piscina sarà dimensionato in base a quanto richiesto:
- dalla norma UNI 10637;
- dalla Legge Regionale 9 marzo 2006, numero 8 – Norme in materia di requisiti igienico-sanitari delle piscine ad uso natatorio – Testo integrato con le modifiche apportate nel 2015 : Legge regionale 23 dicembre 2014, n. 84 Modifiche alla legge regionale 9 marzo 2006 , n.8 (Norme in materia di requisiti igienico sanitari delle piscine ad uso natatorio).
Il progetto sarà volto a realizzare, partendo da quanto esiste, un sistema completo ed efficiente costituito di: impianto di filtrazione acqua piscina, impianto di circolazione acqua piscina e vasca, impianto di disinfezione automatico dell’acqua della piscina, impianto a raggi UV per ausilio alla disinfezione, sistema di reintegro automatico e manuale dell’acqua di piscina, sistema di sicurezza nel locale prodotti chimici, sistema di declorazione dell’acqua di scarico.
Inoltre, per ottimizzare i costi di gestione, verrà migliorato e opportunamente adeguato il sistema di copertura della vasca, con copertura isotermica e di sicurezza.
Nell’ottica dell’aumento dell’efficienza energetica, è previsto un sistema di recupero del calore dall’acqua di ricambio della piscina tramite un recuperatore statico in contro corrente con un efficiente circuito a pompa di calore (COP > 6) che permette di ridurre al minimo, se non azzerare, i costi di riscaldamento dell’acqua di ricambio della piscina.
Progetto opere strutturali
Gli interventi strutturali in esame si suddividono in quattro gruppi di opere:
- la sostituzione totale della copertura in legno lamellare con una nuova adeguata ai carichi delle attuali normative;
- l’adeguamento statico e sismico della struttura del corpo interno a tre piani, con inserimento di nuovi vani scala e ascensore;
- la realizzazione delle nuove strutture che costituiranno la copertura della vasca principale e della vasca di apprendimento, destinate ad ospitare superiormente gli spazi per una nuova palestra e per i campi da padel;
- la realizzazione di due nuovi archi esterni al fine di dare continuità geometrica e architettonica all’ampliamento con i nuovi corpi sul fronte sud.
La sostituzione totale della copertura è stata richiesta dalla stazione appaltante, dato lo stato di degrado di alcuni degli archi principali e del manto di copertura. L’orditura principale e secondaria non risulta inoltre verificata per i carichi da neve previsti dalla normativa attuale. La nuova copertura avrà la stessa forma e lo stesso schema strutturale di quella esistente, e verranno inoltre predisposti dei sistemi di controvento di falda, assenti nella costruzione esistente. Si potranno ri-utilizzare le fondazioni degli archi esistenti, che, per quanto appreso dai documenti di collaudo e verifica dell’esistente, risultano adeguati ai carichi della norma attuale.
Per quanto riguarda il corpo interno di tre piani, si interverrà inserendo le strutture in c.a. dei nuovi ascensori, del corpo scala e del montacarichi all’interno della struttura esistente, demolendo parzialmente i solai per consentire il passaggio. I nuovi nuclei in c.a. verranno inoltre sfruttati come elementi di controvento per migliorare la capacità sismica di questa porzione di edificio.
La copertura della vasca di apprendimento si appoggerà su pilastri in c.a. provenienti dall’interrato. L’orizzontamento sopra la zona spogliatoi sarà realizzato con una struttura tradizionale con travi in calcestruzzo e solai in latero-cemento, mentre la parte sopra la vasca, date le luci di circa 17,5 m, avrà delle travi reticolari in acciaio zincato (al fine di eliminare il problema del degrado che ha colpito il legno della struttura esistente) su cui si appoggerà un solaio in lamiera grecata e getto collaborante. Lo stesso schema verrà utilizzato per il solaio sopra la vasca principale, dove le travi reticolari in acciaio, data la loro trasparenza visiva, non ostacoleranno la diffusione della luce.
Per quanto riguarda i due archi esterni, infine, nello spirito della sostenibilità e del recupero architettonico, saranno realizzati tramite il ricollocamento di due degli archi in legno lamellare del precedente ampliamento del palaghiaccio sul fronte nord. Questi archi, privi di funzione statica (su di essi non graverà la copertura e saranno soggetti solo al peso proprio), verranno rivestiti interamente con una lattoneria per garantirne la durabilità.


























