Un nuovo impianto di atletica leggera è stato realizzato a Casale Monferrato, in provincia di Alessandria, in un’area limitrofa al palazzetto dello sport e alla piscina.
L’atletica leggera al polo sportivo di San Bernardino di Casale Monferrato

L’intervento riguarda la realizzazione di un nuovo impianto di atletica leggera con i relativi servizi di base poiché mancava un polo atletico idoneo sul territorio del Comune di Casale Monferrato, in provincia di Alessandria, e nelle immediate vicinanze.
L’unica pista di atletica leggera esistente era quella situata all’interno dello Stadio Natal Palli, non più rispondente agli attuali standard normativi e qualitativi.
L’area oggetto di intervento risultava incolta o parzialmente invasa da vegetazione spontanea, ed essendo stata fino al 2015 proprietà demaniale demandata all’uso da parte del Ministero della Difesa, non aveva avuto un utilizzo specifico, pur essendo individuata nel Piano Urbanistico come area sportiva.
La zona è limitrofa all’area urbana e sportiva comunale, in particolare al Palazzetto dello Sport Paolo Ferraris, alla “Piscina Comunale” e al centro commerciale “La Cittadella”.
Collocazione della pista di atletica di Casale Monferrato (Al)
L’immediata vicinanza tra il Palazzetto e l’impianto di atletica consentirà ai fruitori di poter beneficiare di uno scambio reciproco di attività da svolgere presso le due strutture. I due impianti sportivi diventeranno così tra loro complementari.
La condivisione degli spazi con il Palazzetto consentirà al nuovo impianto di atletica di soddisfare tutti i requisiti previsti dalla Circolare Tecnica FIDAL, relativamente ad aree ristoro, sala stampa, palestre, spogliatoi, uffici.
Per quanto riguarda l’orientamento della pista d’atletica si è dovuto tener conto della Normativa CONI per l’impiantistica sportiva del 25 giugno 2008, avallata anche dalla normativa FIDAL, che richiede un orientamento per l’asse principale di svolgimento dell’attività sportiva nella direzione Nord-Sud, con una tolleranza di 15° verso Est o Ovest.


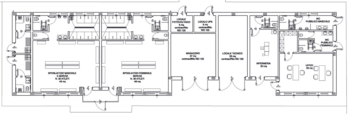
Il nuovo impianto di Casale Monferrato comprende la pista di atletica leggera a 6 corsie, un nuovo campo in erba naturale all’interno dell’anello della pista e un nuovo blocco spogliatoi, collocato a sud-ovest della pista. Il campo in erba naturale è provvisto di un sistema di drenaggio, collegato a quello della pista, e di un impianto di irrigazione.


Edificio spogliatoi; a sinistra, la pianta; a destra un’immagine dell’esterno.
La pista di atletica leggera outdoor è dotata di 6 corsie ognuna di larghezza m 1,22 con uno sviluppo di 400 metri; una corsia esterna all’anello della pista, larga 150 cm, in tappetino bituminoso, ha funzione di fascia di rispetto libera da ogni ostacolo.
La lunetta semicircolare a sud comprende la pedana per il salto con l’asta, l’area per il salto in alto, e la pedana per il lancio del giavellotto.
Nella lunetta semicircolare nord è collocata la vasca del percorso siepi; il resto dell’area, in erba naturale, ospita le pedane circolari per il lancio del disco/martello e per il getto del peso.
In corrispondenza del rettilineo ovest è collocata la pedana per il salto in lungo e triplo, con una pista per la rincorsa larga almeno m 1,22 e lunga in tutto 54,95 metri oltre le fosse di caduta, dimensioni 2,75×10 metri, con relativi dissabbiatori in corrispondenza dei lati lunghi.
Una piazzola in cls è realizzata in corrispondenza dell’arrivo dei 100 metri (rettilineo ovest), esterna alla prima corsia, per il posizionamento dell’area giudici.

La superficie sportiva
Il terreno, che in precedenza era incolto, ha richiesto tutte le lavorazioni necessarie a creare l’idoneo sottofondo nonché l’impianto di smaltimento delle acque meteoriche; una volta livellata la massicciata sono stati creati i successivi strati di binder e il tappetino in conglomerato bituminoso, con le corrette pendenze, esteso anche alla fascia di rispetto.
Il pavimento sportivo è costituito da un manto impermeabile colato in opera, esclusa la fascia esterna alle 6 corsie regolamentari.
Dopo una mano di attacco in primer poliuretanico per l’ancoraggio al sottofondo, è stato realizzato uno strato di base dello spessore di mm. 11, realizzato con stesura mediante macchina stenditrice di granuli di gomma SBR nera opportunamente miscelati con resina poliuretanica e successivo strato di turapori realizzato mediante spalmatura di resina poliuretanica bicomponente colorata.
Su di esso, uno strato superficiale di usura dello spessore totale di mm. 3, formato da colata livellatrice e di ancoraggio in resina poliuretanica bicomponente colorata, posta in opera con rabbielli dentati e successiva semina di granuli di terpolimero (EPDM) pure colorati, eseguita sullo strato di resina bicomponente non ancora catalizzata per ottenere il parziale inglobamento nella stessa.
La posa del manto alla pista di atletica di Casale Monferrato si completa con l’aspirazione meccanica dei granuli non perfettamente legati, in maniera da formare un tappeto continuo ad alta resistenza ai raggi u.v., agli agenti atmosferici ed all’azione meccanica delle scarpette chiodate, antisdrucciolo, antiriflesso. Il tutto realizzato per uno spessore totale del manto finito di mm. 14 (11+3), ed avente caratteristiche fisico-meccaniche secondo Regolamento Tecnico FIDAL/W.A. per l’omologabilità e la certificazione dei manti superiori sintetici per impianti di Atletica Leggera.
Il lavoro è completato con la cordolatura regolamentare in alluminio fissa e/o amovibile e delle relative targhette segnaletiche in alluminio, e gli assi di battuta per il salto in lungo e triplo, costruiti in speciale resina poliuretanica ed anima in calcestruzzo armato, compreso l’alloggiamento in apposita cassetta in ferro con incastri d’appoggio.
La segnatura delle 6 corsie dalla pista, comprese le partenze e gli arrivi, è eseguita con speciale vernice di colore bianco e segnaletica in vari colori per settori staffette, ostacoli, ecc., secondo le norme FIDAL.
Impianto di atletica di Casale Monferrato: cenno storico e lettura del territorio
(B.G.)

Il terreno all’interno del quale è stato realizzato il nuovo impianto di atletica leggera è stato trasferito in proprietà al Comune di Casale Monferrato dall’Agenzia del Demanio nel 2015 in quanto facente parte del patrimonio dello Stato non più necessario alle finalità del Ministero della Difesa; inoltre, una nota della Direzione Regionale Piemonte del MiBACT in data 4 aprile 2008 dichiarava che il bene in oggetto non riveste interesse culturale.
Una visione cartografica dell’area mette comunque in rilievo la particolarità del luogo, che si pone in adiacenza ad una riconoscibile struttura fortificata (qui sopra, planimetria di Casale dell’ingegnere Laussada, 1854).
Come documenta il FAI in una scheda dedicata, “tra il 1850 ed il 1859, nell’area della fortificazione dei Gonzaga, si procedette ad ulteriori demolizioni delle fondamenta del preesistente manufatto al fine di realizzare una “corona” fortificata con i bastioni di San Carlo, San Giorgio e Santa Barbara. Si trattava di quel preunitario “campo trincerato” di Casale, determinante nel sistema territoriale della linea difensiva che La Marmora organizzò da Torino al Lombardo-Veneto in occasione delle Guerre di Indipendenza.
Della Cittadella risorgimentale restano oggi i bastioni e alcuni manufatti, tra cui la Porta e la Polveriera. Oggetto di parziali restauri nei primi anni 2000, la fortezza oggi si presenta in parte abbandonata e in attesa di restauro”.



Il territorio comunale in cui sorge l’impianto di atletica leggera.
Da sinistra a destra, negli anni 2001 – 2019 – 2026 (ortofoto – Google Earth).
Negli anni ‘90 una parte della cittadella (la porzione nord) è stata resa fruibile alla cittadinanza, potendo accedere alla stessa tramite la porta nord verso Piazza d’Armi.
Le mura di scarpa del fronte sud (verso l’area dove è sorto l’impianto di atletica di Casale Monferrato) sono ricoperte da una fitta vegetazione, spontanea ed incolta, che ne impedisce la visuale.
In quello che un tempo era il fossato ora si trova il canale Mellana con la relativa strada alzaia. Il terreno in questione è denominato “ex poligono zappatori Cittadella” in quanto il 2° Reggimento Genio Zappatori ebbe sede a Casale Monferrato tra il 1867 e il 1919 e successivamente tra il 1926 e il 1943.
Gli zappatori sono soldati del Genio militare specializzati nello scavare trincee per bloccare l’avvicinamento del nemico, oppure gallerie alla base delle fortificazioni per provocarne il crollo. Nell’area in questione sono infatti ancora visibili evidenti rimaneggiamenti del terreno riconducibili agli scavi in trincea che venivano realizzati dagli “zappatori” per le loro esercitazioni.
A partire dal 1958 i militari del Centro Addestramento Reclute della caserma Nino Bixio vi svolgevano esercitazioni di tiro; nel 1999 la caserma venne dismessa e il terreno non più utilizzato.
L’urbanizzazione che è andata avanzando introno alle vecchie fortificazioni continua così ad assediarle: a sud dell’ex poligono è sorto prima il palazzetto dello sport – nel 1966, ancora immerso nel verde; seguito poi negli anni 2000 dalla piscina e dal centro commerciale.
Con la pista di atletica a Casale Monferrato – che peraltro assume un orientamento dettato da esigenze sportive e non da una più armonica collocazione sul territorio – si va a saturare ulteriormente uno spazio libero, obbligando a scelte che devono necessariamente costituire un compromesso tra obiettivi, tutti legittimi, di pubblico interesse.




