La piscina può essere l’ambiente adatto per svolgere un’attività terapeutico-riabilitativa: ma è possibile renderla accessibile anche per un uso polivalente. Ne vediamo alcuni principi.
Speciale Acqua – Parte 4: La piscina accessibile e la piscina terapeutica

(foto Bez Bretelky / Shutterstock)
Vai alla Parte 1: ieri e oggi. La piscina tra storia e norme
Vai alla Parte 2: Rassegna. Forme, materiali e accessori nel progetto delle piscine
Vai alla Parte 3: Dal parco acquatico alle terme
Vai alla Parte 5: Altri temi intorno all’acqua: la piscina privata, il deep diving, gli sport inusuali
Accessibilità e riabilitazione
La piscina è l’impianto sportivo che viene fruito ed utilizzato per discipline sportive che hanno in comune tra loro l’elemento “acqua”, fluido che consente di limitare le difficoltà connesse alla gravità terrestre, soprattutto per le persone con disabilità motoria. È infatti l’ambiente in cui maggiormente si svolge un’attività terapeutico-riabilitativa per gli arti inferiori.
Se pensiamo a una vasca per la riabilitazione motoria vera e propria immaginiamo che debba essere ospitata in una struttura di carattere ospedaliero. Ma la possibilità di un uso polivalente, almeno per trattamenti non necessariamente legati ad una patologia quanto al concetto di benessere psicofisico, fa sì che all’interno di progetti di recupero funzionale e distributivo di impianti natatori tradizionali, o nella progettazione di nuovi, compaiano anche spazi pur minimi destinati alla riabilitazione in acqua.
In linea generale, questi spazi possono essere ricavati in diversi modi:
– Creando un’apposita vasca terapeutica, anche prefabbricata;
– Dimensionando opportunamente la vasca dedicata ai bambini o ai principianti;
– Applicando alla vasca per il nuoto soluzioni tecnologiche avanzate, come fondi e pareti mobili (ne abbiamo parlato nelle pagine precedenti), per ottenere all’occorrenza dimensioni e profondità adatte allo scopo.
Si tratta evidentemente di una scelta dovuta alla necessità di ampliare le possibilità di utilizzo degli spazi d’acqua per ottimizzare la gestione economica dell’impianto. Per offrire dunque soluzioni qualitativamente sicure e funzionali all’utente che necessita di un processo riabilitativo da svolgere in ambiente acquatico, è indispensabile affidarsi a strutture che dispongono di ambienti realizzati con tale attenzione e capacità progettuale.
Riprendiamo (dalla rubrica “Progettare l’accessibilità” pubblicata in passato sulle pagine di Tsport a cura di Tommaso Empler) una sorta di check-list delle caratteristiche che un impianto natatorio dovrebbe avere per poter rispondere a tali requisiti.
Area interna comune
– Sul pavimento deve essere previsto un percorso tattile, realizzato con piastrelle a rilievo e in un colore contrastante con il resto della pavimentazione, che colleghi la zona d’ingresso con lo spogliatoio e lo spogliatoio con la piscina.
– Nelle piscine in cui è presente un percorso “piedi calzati” e “piedi nudi” deve essere previsto anche un itinerario alternativo per le sedie a ruote, in modo che queste non debbano passare necessariamente per le vasche lavapiedi.
– Un corrimano continuo, collocato ad un’altezza di 90 cm, costituisce un ottimo supporto per le persone che hanno difficoltà di deambulazione, così com’è opportuno che le piastrelle della pavimentazione siano del tipo antisdrucciolevole.
Area degli spettatori
– L’area degli spettatori deve prevedere dei posti in cui possono sistemarsi persone su sedia a ruote, benché nessuna norma riporti quanti debbano essere i posti riservati agli spettatori su sedia a ruote (che, a differenza degli altri, necessitano di uno spazio libero da sedute).
– È importante prevedere una adeguata distribuzione dei posti riservati, ponendoli vicino alle sedute normali, per consentire a coloro che si trovano su sedia a ruote di sedersi accanto a parenti ed amici “normodotati”. Tali stalli possono essere usati anche da persone con bambini in carrozzina o in passeggino al seguito.
– Possibilità di individuare i posti numerati con l’uso di una numerazione a rilievo o in braille per i non vedenti.

Area degli atleti
– Il bordo della piscina, il corrimano e i gradini d’accesso alla vasca dovrebbero essere contrastanti con il resto della pavimentazione, in modo da evidenziare il confine stesso della vasca per coloro che hanno una menomazione visiva come gli ipovedenti. Per motivi di sicurezza tutti gli spigoli dovrebbero essere arrotondati.
– L’accesso alla vasca può avvenire mediante 3 sistemi: utilizzando una scala, una rampa o un apposito sollevatore. Tali dispositivi devono essere collocati in un’apposita zona ubicata al di fuori dell’area preposta alla gara.
– Le scale d’entrata/uscita dalla piscina devono prevedere almeno un corrimano, collocato sul lato del perimetro della piscina. I gradini devono avere un’alzata compresa tra i 12 e i 15 cm ed una pedata compresa tra i 30 e i 34 cm, quest’ultima realizzata con piastrelle o materiali antisdrucciolevoli.
Nelle piscine già esistenti tale scala potrebbe essere realizzata in metallo.
– Gli scalini possono essere sostituiti o integrati da una rampa con corrimano su entrambi i lati e una larghezza di almeno 90 cm. La pendenza della rampa non dovrebbe essere superiore all’8% (consigliata 5%) e la pavimentazione del tipo antisdrucciolevole.
– Un sollevatore può essere installato per le persone con patologie altamente invalidanti. Il dispositivo migliore è quello che consente di spostare direttamente nell’acqua la sedia del nuotatore utilizzata per fare la doccia. Questa condizione evita, alla persona disabile, di spostarsi dalla sua sedia a ruote al seggiolino del sollevatore.
Il sollevatore dovrebbe essere collocato ad una distanza di almeno 1,50 m dalla parete o da altri ostacoli, e potrebbe essere mascherato al pubblico con una piccola paretina divisoria.
– Il bordo della piscina dovrebbe essere pensato in modo che l’acqua sfiori il livello della pavimentazione e la canaletta di raccolta sia collocata sul bordo, in modo da tenere la pavimentazione esterna circostante asciutta e possa, allo stesso tempo, costituire un utile riferimento per i non vedenti.
Tale soluzione, tuttavia, può costituire una fonte di disagio per coloro che entrano o escono dall’acqua rotolandosi e strusciando, pertanto, il torace e/o la schiena sul bordo stesso, come per le persone affette da paralisi.
– In alternativa il bordo della piscina può essere rialzato di 50 cm dal livello del pavimento, realizzando un muretto perimetrale largo almeno 50 cm. Tale accorgimento agevola quelle persone su sedia a ruote che sono in grado di entrare nell’acqua senza assistenza e che preferiscono effettuare il trasferimento dalla sedia a ruote alla vasca sul bordo della piscina. Per consentire l’uscita tale muretto perimetrale deve presentare delle aperture di almeno 1 m in uno o più punti del bordo della vasca. Anche questa soluzione presenta degli svantaggi per coloro che preferiscono entrare nella vasca mediante la scala o la rampa.
Per tale motivo una soluzione mista, che preveda dei muretti sui lati corti e l’acqua a sfiorare il pavimento nei lati lunghi, può contemplare le esigenze di più utilizzatori.
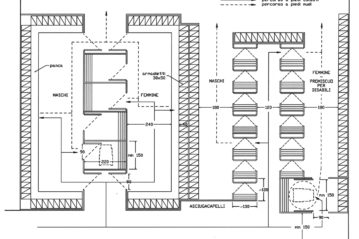
Spazio spogliatoio
– I requisiti dello spazio spogliatoio riguardano indicazioni per lo spazio in cui viene effettuato il cambio degli abiti (“area asciutta”) e la zona in cui viene effettuata la doccia (“area bagnata”).
Alcune soluzioni sono universali, altre sono particolari e tengono conto del modo in cui una persona disabile si trasferisce su una seduta, si sostiene o usa i meccanismi di controllo (ad esempio il miscelatore della doccia), sebbene nessuna precluda l’uso delle altre. Le soluzioni sono pensate principalmente per facilitare le persone su sedia a ruote, poiché esse si trovano nella situazione di svantaggio maggiore rispetto agli altri.
– L’area bagnata
Il principale problema da analizzare riguarda la possibilità di trasferimento dalla sedia a ruote al seggiolino su cui effettuare la doccia e tenere la propria sedia a ruote asciutta e raggiungibile per effettuare l’operazione inversa. Tali spostamenti richiedono un adeguato spazio di manovra per la sedia a ruote.
Per facilitare il bagno, i piatti doccia devono essere a pavimento, con una leggera pendenza verso il/i punto/i di scarico. Per agevolare la privacy possono essere collocate delle tende da doccia o delle paretine rigide.
Sono, invece, da evitare i gradini di contenimento dell’acqua, che possono causare difficoltà di movimento alle sedie a ruote e/o alle persone che hanno difficoltà di deambulazione.
– L’area asciutta
L’area asciutta riguarda quella parte dello spogliatoio in cui viene effettuato il cambio dell’abbigliamento.
Elementi che devono essere attentamente considerati e ben dimensionati sono:
- la cabina di cambio, deve avere delle dimensioni interne che permettono ad una sedia a ruote di entrare, di chiudere la porta e spogliarsi con l’aiuto di una terza persona;
- l’altezza dell’attaccapanni per gli abiti e gli asciugamani (H = 1,20 m);
- gli asciugacapelli – per i capelli e per il corpo – devono essere collocati ad una altezza non superiore a 1,40 m ed essere dotati di tubi per il getto manovrabili e flessibili;
- deve essere previsto uno specchio a tutt’altezza da 0,20 m a 1,80 m;
- si devono prevedere dei ripiani per appoggiare gli oggetti personali (H = 0,90 m).

















